Nước Nga trong tôi

Nước Nga trong tôi (http://diendan.nuocnga.net/index.php)
-   Kiến trúc (http://diendan.nuocnga.net/forumdisplay.php?f=35)
-   -   Chủ nghĩa Cấu tạo Nga. (http://diendan.nuocnga.net/showthread.php?t=3507)

htienkenzo 01-11-2010 22:25

Chủ nghĩa Cấu tạo Nga.
 
Nhân dịp Tổng thống Nga D.A.Medvedev sang thăm Việt Nam và giao lưu với cựu sinh viên Việt Nam đã từng sống, học tập và làm việc tại Liên Xô/ Nga, bên cạnh đó, tôi được biết Tổng thống Medvedev rất thích chiêm ngưỡng các công trình Kiến trúc, tôi xin phép tham gia một chút về Chủ nghĩa Cấu tạo Nga-một trào lưu Nghệ thuật tiên phong hiện đại thời kỳ đầu của Xô viết. Mong các bác hưởng ứng! :emoticon-0150-hands
(Sưu tầm và biên soạn)


Chủ nghĩa Cấu tạo (Конструкция/Constructivism)


http://i964.photobucket.com/albums/a...printhsem9.jpg

http://i964.photobucket.com/albums/a...arninovle0.jpg


Chủ nghĩa cấu tạo là 1 trào lưu hội hoạ, kiến trúc ở Nga sau Cách mạng Tháng Mười.Trong kiến trúc, Constructivism theo đúng tinh thần của chủ nghĩa cộng sản, lý tưởng cộng sản với việc đề cao nhân dân lao động đã tác động đến các KTS Liên Xô lúc đó. Chủ nghĩa Cấu tạo chú trọng tới công năng của công trình, loại bỏ những chi tiết trang trí thừa mứa lãng phí, công trình chủ yếu là hệ kết cấu chịu lực. Hệ kết cấu, như những người lao động chính là tâm điểm mới của trào lưu này.

Chính vì thế Chủ nghĩa Cấu tạo hoàn toàn khác với tất cả lý thuyết kiến trúc thời đó. Sau này người ta đã nói Constructivism đã đi trước thế giới khoảng 1 thế kỷ. Đáng tiếc là trào lưu này chỉ tồn tại được 10 năm: 1920-1930, quá ngắn ngủi cho 1 chủ nghĩa kiến trúc !


Chủ nghĩa Cấu tạo Nga được châu Âu biết đến lần đầu tiên vào năm 1925 tại Hội chợ quốc tế Paris. Gian hàng Liên Xô với sự đơn giản đến không còn gì có thể đơn giản hơn, đã nổi bật giữa những gian hàng các nước châu Âu khác: phù hoa, phô trương sự giàu có, thừa mứa của Chủ nghĩa Tư bản.

http://i964.photobucket.com/albums/a...kov1925aj0.jpg

Gian hàng nhỏ, giản dị, với 1 lối vào là cầu thang chéo góc, khiêm nhường và lặng lẽ.

http://i964.photobucket.com/albums/a...4melnk2vy7.jpg

http://i964.photobucket.com/albums/a...lm1copytk3.jpg


Nhiều KTS châu Âu lúc đó đã ngỡ ngàng trước gian hàng bé nhỏ này. Le Corbusier, cây đại thụ của nền kiến trúc thế giới, đã có cảm tình với Chủ nghĩa Cấu tạo khi thấy công trình này. Sau này Le Corbusier đã tham gia thiết kế Cung văn hoá Xôviết tại Moskva.

Nhận xét về Chủ nghĩa Cấu tạo, Le Corbusier nói: "Một phong cách hoàn toàn độc đáo, đi trước thời đại chúng ta."



Chủ nghĩa Cấu tạo đề cao công năng, tính sử dụng, hướng tới con người, hướng tới sự đơn giản , cái đẹp của hình khối, của sự chuyển động, của kết cấu. Đó là 1 bước tiến rất lớn so với thế giới thời đó vẫn đang say sưa với chủ nghĩa phục cổ , chủ nghĩa hình thức với những công trình đầy tính xa hoa , phô trương.




Các nghệ sĩ thuộc trào lưu Chủ nghĩa Cấu tạo luôn chống tính hình thức. Chúng ta hãy cùng ngắm nhìn công trình này, đó là Đài tưởng niệm Quốc tế 3.


http://i964.photobucket.com/albums/a...o/TamQuct1.jpg

Nghĩ tới 1 đài tưởng niệm Chủ nghĩa Marx, trong đầu chúng ta chắc chắn hiện lên: hình ảnh búa liềm, Lenin, Marx, CCCP., ....

Nhưng công trình này hoàn toàn không có những hình ảnh đó. Đây là công trình đầu tiên đánh dấu sự ra đời của Chủ nghĩa Cấu tạo,do Vladimir Tatlin sáng tác. Công trình là 1 khối chóp có 2 đường xoắn ốc lên tới độ cao 400m. (Hãy nghĩ tới độ cao này- vào năm 1919). Bên trong có treo 3 khối lớn là 3 phòng trưng bày hình lập phương, tứ diện tam giác và hình trụ. 3 phòng này quay quanh trục của chúng với nhịp điệu khác nhau.

Không có những hình tượng Búa Liềm, không có ảnh, tượng đài Lenin, Marx, Engels, vậy đâu là cái làm nên Đài tưởng niệm Quốc tế 3 ?

http://i964.photobucket.com/albums/a...o/TamQuct2.jpg

Vladimir Tatlin đã sáng tác 1 công trình có tính tư tưởng cao: 2 dầm xoắn ốc thể hiện sự phát triển của xã hội theo quy luật biện chứng của chủ nghĩa Marx: sự phát triển theo hình xoắn ốc, tuần tự và có các bước nhảy vọt.


Chủ nghĩa Cấu tạo là như thế đó ! Người cộng sản đâu phải lúc nào cũng "xăm" hình búa liềm lên khắp mọi nơi!


Chủ nghĩa Cấu tạo là sự đơn giản, như đơn giản ở đây không phải là nhỏ bé 1 cách tầm thường. (Đài Quốc tế 3 cao 400m, cao hơn toà nhà Empire Building ở Mỹ). Chủ nghĩa cấu tạo sau này có 1 nhánh phát triển là Chủ nghĩa Siêu Việt (Suprematism)

http://i964.photobucket.com/albums/a...3545malbx1.jpg

Toà cao ốc trên được thiết kế bởi Kazimir Malevich, một trong những người khai sinh Constructivism. Không phải là những toà nhà chọc trời dựng đứng 1 cách cao ngạo, đè bẹp con người như những toà cao ốc ở New York, cao ốc theo kiểu Chủ nghĩa cấu tạo gồm nhiều khối, nâng đỡ nhau , những khối từ từ phát triển cao lên, theo đúng tinh thần chủ nghĩa tập thể XHCN.

http://i964.photobucket.com/albums/a...135chr1qv6.jpg

http://i964.photobucket.com/albums/a...arninovle0.jpg

Đa số những thiết kế trong trào lưu Constructivism đều ở trên giấy, không thành hiện thực, 1 phần vì các tác giả của nó có dính dáng tới tư tưởng Troskism, và dính tới Trosky thì như các bác đã biết... Chú thích ở đây để các bác bớt đi thắc mắc : "Những công trình này làm gì có ở Nga ?"

Hãy nói tiếp về Constructivism, đây là 1 công trình của Ivan Leonidov: Học viện Lenin, thiết kế năm 1927

http://i964.photobucket.com/albums/a...HcvinLenin.gif

Quả cầu lớn là 1 giảng đường, được giữ bằng hệ cáp treo. Tới thời điểm năm 2010 hiện nay, những kết cấu kiểu này vẫn còn đang trong giai đoạn thực nghiệm.

(còn tiếp...)

htienkenzo 02-11-2010 00:18

Những kết cấu của Chủ nghĩa Cấu tạo đến nay vẫn làm cho nhiều người ngạc nhiên, 1 công trình thiết kế từ năm 1920, nếu được xây dựng vào năm nay, hoặc là đến 2020 hay lâu hơn, vẫn mang tính hiện đại rất cao, đó là Toà nhà cao tầng "Vòng đạp mây" của Lissitzky.

http://i964.photobucket.com/albums/a...nzo/Vngpmy.jpg

Chủ nghĩa Cấu tạo, tuy xuất hiện đầu thế kỷ 20, đến tận bây giờ, vẫn thuộc về tương lai...

Chủ nghĩa Cấu tạo phát triển chỉ trong vòng 10 năm , 1920-1930, sau đó Stalin đã bóp chết cả 1 nền kiến trúc Xô viết. Có thể nói Stalin "ảnh hưởng" đến nền Kiến trúc, Nghệ thuật thế giới. Kể từ 1930, nhân danh "nền Nghệ thuật XHCN" , Stalin đã ép các Kts. vào chủ nghĩa hình thức. Tất cả các công trình đều phải gò theo hình ngôi sao, đều phải đóng lên "con dấu" CCCP, đều phải "xăm" lên hình búa liềm. Chủ nghĩa Cấu tạo , vốn tiến bộ do quay lưng hẳn với chủ nghĩa hình thức, nay nhờ bàn tay của Stalin, đã bị ép vào khuôn cổ hủ, kinh viện đến đáng sợ!

Cái chết của Chủ nghĩa Cấu tạo được tuyên bố chính thức vào năm 1937. Cuộc thi chọn phương án thiết kế Công trình "Cung văn hoá Xô viết", với "bàn tay" của Stalin, Ban Giám khảo đã loại mọi đồ án của Lissitzky, Le Corbusier, Tatlin, Vesnin,... và chọn công trình của Kts. Ivan Iofavic.Công trình cao 450m, với dạng vòm cuốn, có những khối trụ tròn càng lên cao càng nhỏ và trên đỉnh trụ là tượng Stalin, toà nhà cũng dày đặc "CCCP" và ngôi sao, búa liềm, cùng với chi chít khẩu hiệu tuyên truyền. (ghi chú: tượng Stalin cao gần 100m!)

Chủ nghĩa tín điều, độc đoán, bảo thủ đã chấm dứt sự tồn tại của Chủ nghĩa Cấu tạo Nga.

Chủ nghĩa Cấu tạo đã bị "bóp mũi" ngay trên đất nước sinh ra nó - Liên Xô. Nhưng nó không chết, cái gì thuộc về chân lý luôn có sức sống mãnh liệt!

Đây! Và đây là công trình đánh dấu sự Kết Thúc - "cái chết" của Chủ nghĩa Cấu tạo:

http://i964.photobucket.com/albums/a...ngVnhaXvit.jpg

Thập niên 1970s, Mỹ nhận thấy sự năng động của Chủ nghĩa Cấu tạo, họ rất ngạc nhiên khi thấy những thiết kế cao ốc của các Kts. Liên Xô, đặc biệt là Kazimir Malevich, từ đó Mỹ đã cho xây dựng hàng loạt toà cao ốc mà hình dáng của nó gần giống những thiết kế ở Liên Xô từ những năm 1920s!

Người Mỹ đã rất thán phục và gọi Constructivism bằng 1 cụm từ khác: "Nghệ thuật tiên phong" (Avant-garde Art). Chủ nghĩa Cấu tạo từ đó phát triển mạnh mẽ với những nhánh khác nhau Hiện nay chúng ta thấy Chủ nghĩa Cấu tạo phát triển mạnh mẽ dưới cái tên Chủ nghĩa Tối giản (Minimalism).

Ngày nay ở Châu Âu người ta gọi Chủ nghĩa Cấu tạo là "Chủ nghĩa Tiên Phong"

http://i964.photobucket.com/albums/a...zo/Slide20.jpg

Năm 1922, 1 đoàn gồm những nhà Nghệ thuật thuộc Trào lưu Chủ nghĩa Cấu tạo đi thăm các nước châu Âu, Maiakovsky đã nói: "Họ đi với tư cách là người chủ để xem và kiểm tra nghệ thuật phương Tây"

Năm 1972, Kts. thiết kế toà tháp đôi WTC đã dành những lời thán phục vô biên đối với Toà cao ốc Arkhitectonics của Kts. Kazimir Malevich. Chính ông thừa nhận mình thiết kế toà tháp đôi WTC đã lấy lại hình thức phổ biến của Chủ nghĩa Cấu tạo những năm 1920s.


Những nhà nghệ thuật Xôviết đã đi trước thời đại hàng trăm năm, nhưng thật tiếc cho họ, Stalin đã tiêu diệt đi 1 niềm tự hào của nền Khoa học-Nghệ thuật Liên Xô. Tuy nhiên chủ nghĩa cấu tạo vẫn tồn tại và phát triển dưới các hình thức khác nhau. Những trào lưu lớn hiện nay trên thế giới: Chủ nghĩa Hữu cơ, Chủ nghĩa Công năng, Chủ nghĩa Tối giản, Chủ nghĩa Siêu việt... tất cả đều bắt nguồn từ Chủ nghĩa Cấu tạo.

http://i964.photobucket.com/albums/a...3547malul7.jpg

Một số hình ảnh các Tác phẩm tiêu biểu (có cả công trình đã được xây dựng và mô hình):

"Đài tưởng niệm Quốc tế 3" - mô hình
Thiết kế: Kts. Vladimir Tatlin
Năm: 1919
độ cao: 400m

http://i964.photobucket.com/albums/a...02imagevj8.jpg

Khu chung cư Karl Marx , Vienna (Áo)
Thiết kế:Kts. Karh Ehn (Kts. này là thành viên Đảng Xã hội Áo)
Năm: 1927

Khu chung cư dài 1 km , gồm 1.387 căn hộ dành cho 17.000 người ở. Trong khu chung cư có cả nhà trẻ, thư viện , trạm y tế, cửa hàng , sân vườn và công viên. Một điển hình cho kiểu khu nhà tập thể XHCN.

http://i964.photobucket.com/albums/a...of_in_wien.jpg

Chung cư Habita , Motreal (Canada)
Thiết kế:Kts. Moshe Safdie
Năm: 1967

http://i964.photobucket.com/albums/a...atMontreal.jpg

Diễn đàn Lenin
Thiết kế:Kts. El Lissitzky
Năm: 1920

Diễn đàn Lenin là một cột tháp nghiêng, độ cao 7m , trên cao có 1 bục diễn đàn để các nhà lãnh đạo nói chuyện với dân chúng.

http://i964.photobucket.com/albums/a.../DinnLenin.jpg

Trung tâm Hợp tác Quốc tế
Thiết kế:Kts. Ivan Leonidov
Năm: 1928

http://i964.photobucket.com/albums/a...tmHptcQuct.jpg

Ngôi nhà tròn
Thiết kế:Kts. Konstantine Melnikov
Năm: 1929
(đây là nhà riêng của chính Melnikov)

http://i964.photobucket.com/albums/a...lnikovback.jpg

Câu lạc bộ Công nhân Rusakov
Thiết kế:Kts. Konstantine Melnikov
Năm: 1929

http://i964.photobucket.com/albums/a...ulcbCngnhn.jpg

Viện Văn hoá đương đại Xô viết
Thiết kế: 3 Anh em Kts. Vesnin (Victor Vesnin, Leonide Vesnin, Alexandr Vesnin)
Năm: 1921

http://i964.photobucket.com/albums/a...nhangiXvit.jpg

http://i964.photobucket.com/albums/a...esnin_1924.jpg

Cao ốc Moskva
Thiết kế:Kts. Nikolai Ladovski
Năm: 1923

Chúng ta hãy cùng nhìn 2 tấm ảnh sau: đầu tiên là thiết kế của Kts. Ladovski năm 1923, sau đó là toà cao ốc Sears Tower được "thiết kế" năm 1970 - niềm tự hào của Chicago và nước Mỹ.

http://i964.photobucket.com/albums/a...CaocMoskva.jpg

http://i964.photobucket.com/albums/a...20towerrw0.jpg

Chủ nghĩa Cấu tạo Nga là thế đấy! Nó quả là có sức sống mãnh liệt thật!

Cảm ơn các bác đã quan tâm! :emoticon-0150-hands

htienkenzo 02-11-2010 08:20

Trích:

htienkenzo viết (Bài viết 70846)
Chủ nghĩa Cấu tạo phát triển chỉ trong vòng 10 năm , 1920-1930, sau đó Stalin đã bóp chết cả 1 nền kiến trúc Xô viết. Có thể nói Stalin "ảnh hưởng" đến nền Kiến trúc, Nghệ thuật thế giới. Kể từ 1930, nhân danh "nền Nghệ thuật XHCN" , Stalin đã ép các Kts. vào chủ nghĩa hình thức. Tất cả các công trình đều phải gò theo hình ngôi sao, đều phải đóng lên "con dấu" CCCP, đều phải "xăm" lên hình búa liềm. Chủ nghĩa Cấu tạo , vốn tiến bộ do quay lưng hẳn với chủ nghĩa hình thức, nay nhờ bàn tay của Stalin, đã bị ép vào khuôn cổ hủ, kinh viện đến đáng sợ!

Cái chết của Chủ nghĩa Cấu tạo được tuyên bố chính thức vào năm 1937. Cuộc thi chọn phương án thiết kế Công trình "Cung văn hoá Xô viết", với "bàn tay" của Stalin, Ban Giám khảo đã loại mọi đồ án của Lissitzky, Le Corbusier, Tatlin, Vesnin,... và chọn công trình của Kts. Ivan Iofavic.Công trình cao 450m, với dạng vòm cuốn, có những khối trụ tròn càng lên cao càng nhỏ và trên đỉnh trụ là tượng Stalin, toà nhà cũng dày đặc "CCCP" và ngôi sao, búa liềm, cùng với chi chít khẩu hiệu tuyên truyền. (ghi chú: tượng Stalin cao gần 100m!)

Chủ nghĩa tín điều, độc đoán, bảo thủ đã chấm dứt sự tồn tại của Chủ nghĩa Cấu tạo Nga.

Chủ nghĩa Cấu tạo đã bị "bóp mũi" ngay trên đất nước sinh ra nó - Liên Xô. Nhưng nó không chết, cái gì thuộc về chân lý luôn có sức sống mãnh liệt!

Đây! Và đây là công trình đánh dấu sự Kết Thúc - "cái chết" của Chủ nghĩa Cấu tạo:

http://i964.photobucket.com/albums/a...ngVnhaXvit.jpg


...

Vấn đề này, các bác có thể tham khảo thêm những tài liệu về Khuynh hướng Nghệ thuật "Hiện thực Xã hội chủ nghĩa" xuất hiện ở Liên Xô, Trung Quốc... Cụ thể, các công trình Kiến trúc tiêu biểu là "7 chị em" ở Liên Xô và Đông Âu-Trường Đại học Quốc gia Moskva-Lomonosov(MGU) là chị Cả (thì phải?)...

Kóc Khơ Me 19-02-2011 17:10

NẾU NHƯ KHÔNG CÓ CHIẾN TRANH… (Những công trình chưa được xây dựng thời Stalin)

Nhìn những bức tranh miêu tả những tòa nhà chưa bao giờ được xây dựng ở Moskva những năm 1930-x. Những tòa nhà sẽ làm thay đổi diện mạo Moskva một cách mạnh mẽ mà chúng ta chưa từng thấy ở bất cứ thành phố nào ta đang sống. Những phối cảnh rực rỡ, hùng vĩ, những đỉnh tháp thanh mảnh trên những độ cao khó tưởng tượng, những trụ sở cơ quan với hình khối vĩ đại. Người ta gọi đó là “phong cách Stalin”, những cái bóng làm thay đổi diện mạo Moskva. Nếu như không có chiến tranh, nếu như không có phát-xít, Nếu Chamberlain và Daladier không nuôi dưỡng những ác thú để chúng làm khổ mình, sau đó lại làm khổ chúng ta. Chúng ta đã chiến thắng nhưng với cái giá phải trả quá lớn. Không biết được sự việc có thể khác đi hay không, cũng không cần tranh luận về điều này!

Cũng không thể biết được Moskva sẽ tốt hơn hay xấu đi nếu những Đồ án của các Nhà kiến trúc Stalin được thực hiện xong. Đã không còn những khoảng sân ấm cúng, những ngôi nhà gợi nhớ cho chúng ta về một Moskva xưa, về những công trình hoành tráng mà nhiều người hiện nay hầu như không còn nhắc tới nữa. Dù sao, sinh ra ở Moskva, chúng tôi có những suy nghĩ khác. Duy chỉ có điều này: Sự bình yên trong những ngôi nhà cổ và Sự hoành tráng kiểu đế chế Stalin là đối nghịch với Sư hiện đại “kiểu Luzhkov”. Vẻ đẹp thì không thể dung thứ cho những điều dung tục được!

Hình ảnh những tòa nhà đấy (những tòa nhà chưa bao giờ được xây dựng) làm mê hoặc tâm hồn. Chúng giống như những con tàu, những con người chưa được sinh ra. Bởi vì khi viết về những người chưa ra đời, vẽ bức tranh của nhưng con tàu, những tòa nhà chưa xây dựng, người ta thấy những thực thể nào đó ẩn dấu bên trong chúng. Đặc biệt là hình ảnh các tòa nhà và những người đi dạo quanh nó. Những con người đã hy sinh ngoài mặt trận, bị trúng bom trên những chuyến tàu, thì ở đây họ đang sống mạnh khỏe. Họ đang hạnh phúc dù cho một Moskva như vậy chưa bào giờ tồn tại!

Bài hát trong phim «Приказ: огня не открывать»

Мой милый, если б не было войны
Ещё до встречи вышла нам разлука,
И всё же о тебе я вижу сны.
Ну разве мы прожили б друг без друга,
Мой милый, если б не было войны,
Мой милый, если б не было войны.
Наверно, я до срока стала старой,
Да только в этом нет твоей вины.
Какой бы мы красивой были парой,
Мой милый, если б не было войны,
Мой милый, если б не было войны.
И снова ты протягиваешь руки,
Зовёшь из невозвратной стороны.
Уже ходили б в школу наши внуки,
Мой милый, если б не было войны,
Мой милый, если б не было войны.
Никто калитку стуком не тревожит,
И глохну я от этой тишины.
Ты б старше был, а я была б моложе,
Мой милый, если б не было войны,
Мой милый, если б не было войны.
Мой милый, если б не было войны.

Anh yêu ơi nếu chẳng có chiến tranh
(Lời dịch của tuhuyen 8/2010)

Chưa gặp được nhau, đã phải chia tay
Tất cả về anh trong mơ em thấy
Phải chăng thiếu nhau sống từ ngày ấy
Anh yêu ơi nếu chẳng có chiến tranh,
Anh yêu ơi nếu chẳng có chiến tranh.
Phải chăng em già trước tuổi cũng đành,
Chẳng phải lỗi anh, anh đừng suy nghĩ
Trời sinh chúng ta một đôi tuyệt mỹ
Anh yêu ơi nếu chẳng có chiến tranh,
Anh yêu ơi nếu chẳng có chiến tranh.
Anh lại dang tay anh sẽ dỗ dành
Gọi về phía anh đi rồi chẳng lại.
Nếu có, cháu ta đến trường rồi thì phải,
Anh yêu ơi nếu chẳng có chiến tranh,
Anh yêu ơi nếu chẳng có chiến tranh.
Lâu lắm chờ anh không ai gõ cửa
Và em nghẹt thở trong vắng lặng này
Anh già dặn hơn, em trẻ phây phây,
Anh yêu ơi nếu chẳng có chiến tranh,
Anh yêu ơi nếu chẳng có chiến tranh.
Anh yêu ơi nếu chẳng có chiến tranh.

TÒA NHÀ DÂN ỦY (BỘ) CÔNG NGHIỆP NẶNG (1934):
Tác giả: A. Vesnin B. Vesnin, S. Liashenko
http://i1178.photobucket.com/albums/...CongNghiep.jpg

Vào năm 1934 đã diến ra cuộc thi về Tòa nhà Dân ủy Công nghiệp nặng trên Quãng trường Đỏ. Công trình 110 ngàn mét khối trên diện tích 4ha dẫn đến việc cải tạo trên diện rộng Quãng trường Đỏ, các con đường xung quanh và Quãng trường phố Kitai. Giai đoạn đầu tiên có 12 đồ án tham dự. Những đồ án ấn tượng là đồ án của anh em nhà Vesnin (A. Vesnin và B. Vesnin), những người đứng đầu phái “chủ nghĩa kết cấu” đã không được ban giám khảo để ý đến như những đồ án của những nhà thiết kế khác, dù cho trong cuộc thi đã đưa ra đánh giá đó là các giải pháp kiến trúc ưu việt hàng đầu, được xem như những ý tưởng thiết kế tuyệt vời nhất của thế kỷ.


TÒA NHÀ DÂN ỦY CÔNG NGHIỆP NẶNG
Tác giả: И.Фомин, П.Абросимов, М.Минкус.
http://i1178.photobucket.com/albums/...NghiepNang.jpg

I.Fomin, một đại diện cho trường phái tân cổ điển St. Peterburg của kiến trúc trong nước, một bậc thầy kiến trúc trước cách mạng. Thậm chí vào những năm 20-x, thời kỳ bị thống lĩnh bởi chủ nghĩa kết cấu, I. Fomin đã biết giữ những nguyên tắc của trường phái cổ điển trong kiến trúc, kể cả nghĩ ra cái gọi là “dạng thức vô sản”. “Hai khối đứng dọc theo mặt chính tạo ra một khe nhìn qua đó có thể thấy lăng. Phía Quãng trường Sverdlov tòa nhà khép lại bằng một dãy ngang. Trong giống như một đường viền. Tại đây bố trí các cổng chào phù hợp với đặc trưng kiến trúc cũ của quảng trường. Mặt bằng tòa nhà như một vòng khép kín. Vì có bố cục khép kín nên chiều cao không quá 12-13 tầng, chỉ có tòa tháp là cao 24 tầng”.


TÒA NHÀ DÂN ỦY CÔNG NGHIỆP NẶNG
Tác giả: А.Веснин, В.Веснин, С.Ляценко
http://i1178.photobucket.com/albums/...ghiepNang2.jpg

..”Từ mái tiền sảnh tương ứng với tường điện Kremlin xây dựng 4 tòa tháp cao 160m. Tiết tấu của 4 khối đứng cùng dãy cột đỡ mái tiền sảnh tạo ra khoảng nhìn cần thiết theo phương dọc quãng trường và phù hợp với cấu trúc bức tường Kremlin. Sự phân đoạn theo phương đứng tương ứng với 4 đoạn tháp Kremlin, bảo đảm sự hòa nhập của tòa nhà với tổng thể chung. Một tiền sảnh duy nhất được thiết kế dọc theo chiều dài của Quãng trường Đỏ…”. Tòa nhà chưa được xây dựng.


NHÀ AEROFLOT
Tác giả: Д.Чечулин
http://i1178.photobucket.com/albums/...haAeroflot.jpg

Năm 1934 cả thế giới đã dõi theo số phận bi thảm của thủy thủ đoàn tàu phá băng Cheliuskin đang trôi dạt trên tảng băng sau khi đã mất con tàu trên vùng biển Chukhotka. Mùa hè năm đó, Moskva chào đón các Chelyuskinites dũng cảm và các phi công đã cứu họ, các Anh hùng Liên Xô. Truyền thống mới của đời sống XHCN yêu cầu phải vinh danh những vinh quang của con người xô-viết dưới hình thức các tượng đài. Tòa nhà Aeroflot được dự định xây dựng trẹn quảng trường nhà ga Belarusia chính là ý nghĩ của kiến trúc sư D. Chechulin như là một tượng đài của ngành hàng không xô-viết anh hùng. Từ ý đó, giải pháp dạng khí động của tòa nhà cao cùng các điêu khắc những phi công-anh hùng: А.Ляпидевского, С.Леваневского, В.Молокова, Н.Каманина, И,Слепнева, И.Водопьянова, И.Доронина, cùng với 7 vách mái vòm trạm khắc, xoay vuông góc với mặt đứng chính tạo nên các cổng công trình. Trong công việc có sự tham gia của nhà điêu khắc I. Shadr, chuyên nặn hình các phi công. Đồ án mới ở giai đoạn đầu và chưa được thực hiện. Gần nửa thế kỷ sau, ý tưởng chung của Đồ án đã được thể hiện qua công trình Nhà Xô-Viết Tối cao Nga trên bờ kè Krasnopresnenskaya (nay là Nhà Chính phủ).


NHÀ SÁCH (1934)
Tác giả: И.Голосов, П.Антонов, А.Журавлев
http://i1178.photobucket.com/albums/...SR/NhaSach.jpg

Đồ án “Nhà Sách” là một trong những ví dụ điền hình về giải pháp thiết kế kiểu “tượng đài” đầu những năm 30-x. Sự đơn điệu của kiểu dáng những khối hình thang thẳng đứng trên tất cả cac phần của tòa nhà. Kiến trúc sư И.Голосов trong những năm 20-x thuộc xu hướng “chủ nghĩa cấu trúc”, về sau đã đưa ra những giải pháp kiến trúc nổi tiếng trong các tác phẩm kinh điển kiểu Xô-Viết. Ông cũng tham gia vào cuộc thi thiết kế Cung Xô-Viết và tòa nhà Dân ủy Công nghiệp nặng vào giai đoạn sơ phát. Công trình của И.Голосов là những phát thảo theo kiểu “lãng mạng tượng trưng”. “Các nhà kiến trúc cần phải thoát khỏi những già cỗi trong suy nghĩ, phải tự mình sáng tạo… Để làm điều đó cần nắm vững các qui tắc và qui luật chủ đạo, giúp cho mỗi kiến trúc sư trong từng trường hợp cụ thể chọn được hướng đi đúng khi giải bài toán sáng tạo nghệ thuật… Cần chọn ra các trường hợp cụ thể như những điều mặc nhiên, chân lý và không thể thay thế. Những trường hợp đó rất nhiều, mang trong nó những giá trị tuyệt đối được thừa nhận rộng rãi như những kiến trúc vừa mang tính kinh điển vừa mang tính thời đại. (trích bài giảng “Những con đường mới trong kiến trúc”).


CỔNG CHÀO NHỮNG ANH HÙNG
Tác giả: Л.Павлов
http://i1178.photobucket.com/albums/...ongAnhHung.jpg

Vào tháng 10 năm 1942, thời điểm căng thẳng nhất của cuộc chiến tranh Vệ Quốc, tờ báo “Văn học và Nghệ thuật” loan tin: Đã kết thúc cuộc thi thiết kế Tượng đài những anh hùng trong Chiến tranh Vệ quốc. Có gần 90 tác phẩm của các nhà điêu khắc và kiến trúc Moskva tham dự cuộc thi. Cuộc thi cũng nhận được các tác phẩm từ Leningrad, Kuibyshev, Sverdlovsk, Tasken và các thành phố khác của Liên Xô. Tổng cộng có khoảng 140 tác phẩm. Với mục đích giới thiệu với công chúng các tác phẩm tham gia cuộc thi, vào mùa đông và mùa xuân năm 1943 ở Moskva đã diễn ra 3 cuộc triển lãm các thiết kế trên. Điều kiện của cuộc thi còn có thêm chủ đề thiết kế và xây dựng Tương đài những “Anh hùng bảo vệ Moskva””. Địa điểm xây dựng tượng đài cũng được xem xét trong cuộc thi. Kiến trúc sư Л.Павлов, tác giả “Cổng chào Anh Hùng” đề xuất vị trí tại Quảng trường Đỏ. Tượng đài chưa được xây dựng.


NHÀ Ở CAO TẦNG TRÊN QUÃNG TRƯỜNG KHỞI NGHĨA
Tác giả: В.Олтаржевский, И.Кузнецов.
http://i1178.photobucket.com/albums/...0USSR/NhaO.jpg

Kiến trúc sư В.Олтаржевский cùng với kiến trúc sư А.Мордвинов, tác giả của đồ án nhà cao tầng “Khách sạn Ukraina” trên đại lộ Kutuzov. В.Олтаржевский nghiên cứu sâu về lý thuyết kiến trúc và các phương pháp xây dựng các tòa nhà cao tầng. Năm 1953 đã xuất bản quyển sách “Xây dựng các tòa nhà cao tầng ở Moskva” trong đó ông cố gắng tìm hiểu mối liên hệ giữa kiến trúc cao tầng với kiến trúc truyền thống Nga. В.Олтаржевский đặc biệt quan tâm đến kết cấu và sự đa dạng của các loại trang thiết bị “cao tầng”. Đồ án của ông không được thực hiện, thay vào đó là đồ án của các kiến trúc sư М.Посохина и А.Мндоянца.


TÒA THỊ CHÍNH Ở Зарядь
Tác giả: Д.Чечулин. 1948
http://i1178.photobucket.com/albums/...NhaCaoTang.jpg

Năm 1947 Chính phủ Liên Xô đã thông qua Nghị quyết về xây dựng các tòa nhà cao tầng ở Moskva. Đầu những năm 1950-x các tòa nhà cao tầng trên Đồi Lênin (MGU), trên Quãng trường Smolensk (MID), trên Quãng trường Lermontov (Nhà Hành chính), trên Quãng trường Komsomolsk và trên Đại lộ Kutuzov (Khách sạn Leningrad và khách sạn Ukraina), các Nhà Ở trên bờ sông Kotelnicheskaya và trên quãng trường Khởi nghĩa đã được xây dựng. Chỉ còn việc xây dựng tòa nhà hành chính 32 tầng ở Зарядь, một trong những điểm nhấn cảnh quan khu vực trung tâm thủ đô là chưa được hoàn thành. Việc xây dựng bị dừng lại sau quyết nghị năm 1955 về “sự thái quá và tính phô trương hình thức trong kiến trúc”, đánh dấu một thời kỳ mới trong kiến trúc Xô-Viết. Những hạng mục đã xây dựng bị dỡ bỏ, vào năm 1967 trền nền móng của tòa nhà đã xây dựng khách sạn Russia cũng do chính kiến trúc sư Д.Чечулин thiết kế.


CUNG XÔ-VIẾT
Tác giả: Б.Иофан, В.Гельфрейх, Я.Белопольский, В.Пелевин. Скульптор С.Меркулов.
Один из вариантов утвержденного проекта. 1946
http://i1178.photobucket.com/albums/...aiHoi_1947.jpg

Cuộc thi thiết kế Cung Xô Viết ở Moskva năm 1934 là một trong những cuộc thi kiến trúc hoàn chỉnh và qui mô nhất của thế kỷ. Ý tưởng về tòa nhà của Nhà nước Công Nông đầu tiên trên thế giới, một biểu tượng thắng lợi của Chủ nghĩa Cộng sản đã có từ những năm 1920-x. Cung Xô Viết dự định đặt tại vị trí đã bị phá hủy của Nhà thờ Христа Спасителя. Cuộc thi bắt đầu vào năm 1931 và qua nhiều giai đoạn. Tất cả có 160 đồ án, 12 tham luận và 24 bản tham khảo, có 112 đề xuất thiết kế, 24 đề xuất do người nước ngoài tham gia, trong đó có những kiến trúc sư nổi tiếng thế giới: Le Corbusier, W. Gropius và E. Mendelssohn. Sự chọn lựa thuộc về các nhà kiến trúc Xô Viết trở lại với các di sản của quá khứ. Các danh hiệu cao đã được trao cho các kiến trúc sư I. ZHOLTOVSKOGO, B. Iofanu, G. Hamilton (Mỹ). Sau đó Hội đồng Xây dựng Cung Đại Hội Xô-Viết (có thời gian chính Stalin cũng tham gia) đã thông qua đồ án của B. Iofan sau khi đã hiệu chỉnh cải tiến để khả thi hơn.

Cung Xô-Viết là tòa nhà lớn nhất thế giới. Chiều cao đạt đến 415m, cao hơn chiều cao của những công trình cao nhất thế giới lúc bấy giờ là Tháp Eiffel và Cao ốc Empire State. Có tượng đài Lenin cao 100m phía trên. Xây dựng Cung Xô-Viết tự nó đã là một lĩnh vực nghiên cứu-khoa học-kinh tế. Trong đó có các phòng thí nghiệm chuyên nghành về ánh sáng, về âm thanh, về chế tạo vật liệu xây dựng chuyên dụng như ‘Thép Cung XV”, “Gạch Cung XV”; có các nhà máy cơ khí và bê tông; có cả một nhánh đường sắt dẫn vào khu vực công trường. Đặc biệt, theo Nghị quyết của Hội đồng Dân Ủy Liên Xô và Xô-Viết Lao động và Quốcphòng, Cung Xô-Viết được khởi công xây dựng vào năm 1934, đến năm 1939 đã chuẩn bị xong nền móng cho phần cao nhất của tòa nhà. Năm 1941 do chiến tranh, công việc xây dựng phải dừng lại và không được tiếp tục trở lại. Các công việc trong dự án Cung Xô-Viết được tiếp tục cho đến cuối những năm 1940-x.

Nguồn: http://www.muar.ru/ve/2003/moscow/index.htmhttp://bg-znanie.ru/article.php?nid=7544
Tạm dịch: Kóc Khơ Me

Vania 19-02-2011 17:13

Trong phố Nguyễn Quý Đức có nhiều sách ảnh về kiến trúc Soviet lắm các bác ạ, in bằng giấy láng trông như mới, cuốn đắt nhất cũng chỉ 30K, không phải em quảng cáo đâu, chẳng qua thấy tiếc đống sách quý giá đó sắp an nghỉ trong xó bếp thôi.

Kóc Khơ Me 27-02-2011 07:54

Nhân đọc các bài viết về "chủ nghĩa cấu tạo" trong topic này, thấy có các nhận định hết sức mạnh bạo mang vẻ phiến diện và hằn học về nguyên nhân thoái trào của phong cách này từ sau những năm 1930-x tại Liên Xô (mà không thấy rằng sự thoái trào này là do những khiếm khuyết nội tại về mặt tư tưởng của chính phương pháp này cũng như những khiếm khuyết được bộc lộ trong thực tế cuộc sống chỉ 1 thời gian ngắn sau đó) nhưng ít thấy xuất hiện trên báo chí và giới kiến trúc Nga chính thống, Kóc xin post hình ảnh một số công trình theo phong cách này được xây dựng từ những năm đó và còn tồn tại đến ngày nay:


http://i1178.photobucket.com/albums/...m/IMGP4462.jpg

Nhà ở tập thể của Наркомфин (дом-коммуну сотрудников Наркомфина на Новинском бульваре)
http://i1178.photobucket.com/albums/...tivism/--2.jpg

дом-мастерской в Кривоарбатском переулке
http://i1178.photobucket.com/albums/...tivism/--1.jpg

 
Tòa nhà của Моссельпром (первый советский небоскрёб –здание Моссельпрома В районе Арбата)
http://i1178.photobucket.com/albums/...m/IMGP2342.jpg

Trung tâm sinh hoạt cộng đồng Русаков (Дома культуры имени Русакова на ул. Стромынка)
http://i1178.photobucket.com/albums/...m/51487529.jpg

Nhà máy bánh mì Зотова (Хлебзавод № 5 (Хлебзавод имени Зотова))
http://i1178.photobucket.com/albums/...m/482bbe37.jpg

Bãi xe buýt trên đường Образцов (Автобусный парк на ул. Образцова)
http://i1178.photobucket.com/albums/...m/94b2b766.jpg

Nhà xe «Интурист» (гараж для автомобилей ВАО «Интурист»)
http://i1178.photobucket.com/albums/...m/IMGP4509.jpg

Câu lạc bộ Nhà máy ЗИЛ (ДК автомобильного завода ЗИЛ)
http://i1178.photobucket.com/albums/...m/IMGP4526.jpg

Nhà UBND Leningrad (Дом Ленсовета)
http://i1178.photobucket.com/albums/...m/d89369b0.jpg

Nhà văn hóa (Дом Культуры имени Ленсовета)
http://i1178.photobucket.com/albums/...m/bafc9dfe.jpg

Tóa nhà Xô-viết vùng Киров (Здание Кировского районного совета)
http://i1178.photobucket.com/albums/...m/a9247e6e.jpg

Дом Культуры имени А.М.Горького
http://i1178.photobucket.com/albums/...m/d51b6881.jpg

Московский районный совет
http://i1178.photobucket.com/albums/...m/409082d1.jpg

Здание управления ФСБ по Санкт-Петербургу и области
http://i1178.photobucket.com/albums/...uctivism/-.jpg

Кировский универмаг
http://i1178.photobucket.com/albums/...m/fc00d749.jpg

клуб завода "Каучук"
http://i1178.photobucket.com/albums/...ub_Kauchuk.jpg

дворец культуры. Имени Горького
http://i1178.photobucket.com/albums/...uctivism/6.jpg

htienkenzo 27-02-2011 15:41

Trích:

Kóc Khơ Me viết (Bài viết 79818)
Nhân đọc các bài viết về "chủ nghĩa cấu tạo" trong topic này, thấy có các nhận định hết sức mạnh bạo mang vẻ phiến diện và hằn học về nguyên nhân thoái trào của phong cách này từ sau những năm 1930-x tại Liên Xô (mà không thấy rằng sự thoái trào này là do những khiếm khuyết nội tại về mặt tư tưởng của chính phương pháp này cũng như những khiếm khuyết được bộc lộ trong thực tế cuộc sống chỉ 1 thời gian ngắn sau đó) nhưng ít thấy xuất hiện trên báo chí và giới kiến trúc Nga chính thống, Kóc xin post hình ảnh một số công trình theo phong cách này được xây dựng từ những năm đó và còn tồn tại đến ngày nay:

...

Cảm ơn bác Kóc đã giới thiệu rất phong phú những tác phẩm kiến trúc thuộc trường phái "Chủ nghĩa Cấu tạo Nga"! Cảm ơn bác rất nhiều! Bởi, cho đến bây giờ, không những riêng tôi mà còn cả những đồng nghiệp lớn tuổi vẫn dành cho trường phái này những tình cảm rất trân trọng đầy lý tính.

Trích:

htienkenzo viết (Bài viết 70846)
...
Cái chết của Chủ nghĩa Cấu tạo được tuyên bố chính thức vào năm 1937. Cuộc thi chọn phương án thiết kế Công trình "Cung văn hoá Xô viết", với "bàn tay" của Stalin, Ban Giám khảo đã loại mọi đồ án của Lissitzky, Le Corbusier, Tatlin, Vesnin,... và chọn công trình của Kts. Ivan Iofavic.Công trình cao 450m, với dạng vòm cuốn, có những khối trụ tròn càng lên cao càng nhỏ và trên đỉnh trụ là tượng Stalin, toà nhà cũng dày đặc "CCCP" và ngôi sao, búa liềm, cùng với chi chít khẩu hiệu tuyên truyền. (ghi chú: tượng Stalin cao gần 100m!)

Chủ nghĩa tín điều, độc đoán, bảo thủ đã chấm dứt sự tồn tại của Chủ nghĩa Cấu tạo Nga.

Chủ nghĩa Cấu tạo đã bị "bóp mũi" ngay trên đất nước sinh ra nó - Liên Xô. Nhưng nó không chết, cái gì thuộc về chân lý luôn có sức sống mãnh liệt!
...

và:

Trích:

htienkenzo viết (Bài viết 70847)
Vấn đề này, các bác có thể tham khảo thêm những tài liệu về Khuynh hướng Nghệ thuật "Hiện thực Xã hội chủ nghĩa" xuất hiện ở Liên Xô, Trung Quốc... Cụ thể, các công trình Kiến trúc tiêu biểu là "7 chị em" ở Liên Xô và Đông Âu-Trường Đại học Quốc gia Moskva-Lomonosov(MGU) là chị Cả (thì phải?)...

Thời sinh viên, khi được trình giảng về "Chủ nghĩa Cấu tạo Nga"(Lịch sử kiến trúc phương Tây) từ Tiến sỹ kiến trúc Lê Thanh S., tôi có đặt câu hỏi trong lớp về lý do tại sao một trào lưu tư tưởng nghệ thuật tiên tiến như thế lại không được phát triển. Vị Tiến sỹ đó đã nói ngay trước lớp với sự dè dặt rằng, đây là điều tế nhị, không tiện nói trước lớp trong giờ học. Sau đó, ngoài giờ học, tôi có hỏi lại vị giảng viên đó và được câu trả lời "gần giống" như thế! Thời gian sau, trong thời gian học "Lịch sử kiến trúc phương Đông", tôi có hỏi Giáo sư, Phó Tiến sỹ kiến trúc Nguyễn Kh.- con rể của cố TBT. TC., phu quân của Kts. Đặng V. Ng., chủ một khu biệt thự "quái dị" ở thành phố Đà Lạt (cả hai đều cùng học Đại học Kiến trúc Moskva). Vị giảng viên cũng giải thích tương tự như thế.
Một thời gian dài về sau, trong lúc bắt đầu buổi "tửu đạo" ở Hội quán Nghệ Sỹ-81 Trần Quốc Thảo-Sài Gòn, Kiến trúc sư Vũ Đại Hải-một kiến trúc sư tài danh và nổi tiếng Việt Nam hiện nay, đã rưng rưng và nắm tay tôi nhắn nhủ với lời nhắn của một bậc Tiên sinh dành cho lớp hậu sinh như tôi rằng, phải đam mê nghề nghiệp và tránh những "xôi thịt" đánh đồng với nghệ thuật Kiến trúc. Sau đó, Kts. Vũ Đại Hải có nói nhiều về "Chủ nghĩa Cấu tạo Nga" khi tôi đề cập đến.
Tư tưởng của "Chủ nghĩa Cấu tạo Nga" được trân trọng nghiên cứu và phát triển ở các nước phương Tây. Nó là "nguồn cảm hứng" cho "Chủ nghĩa High Tech", "Chủ nghĩa Giải tỏa Kết cấu-Desconstruction"... tạo ra những tác phẩm có giá trị sử dụng và giá trị thẩm mỹ cao trên thế giới.

Tôi xin trích một đoạn trong MỸ HỌC KIẾN TRÚC:

"...Trên lịch sử kiến trúc trong, ngoài nước và thế giới hiện thực, xa rời bản tính trừu tượng của vẻ đẹp kiến trúc, đơn giản là đem “cụ thể” áp đặt cho kiến trúc thì không thiếu! Không nói đâu xa thập kỷ 70 của thế kỷ này, trên diễn đàn kiến trúc Trung Quốc đã từng xuất hiện một cuộc tranh luận gọi là “bó đuốc” hay là “quả ớt đỏ”. Đó là khi ga xe lửa Trường Sa-Hồ Nam cắt băng khánh thành và một vật quý màu đỏ trên đỉnh tháp chuông trung tâm, cội nguồn ý tứ của người xây dựng là đem vật quý gắn trên đỉnh tháp tạo thành hình tượng “bó đuốc” theo lối ẩn dụ, ví von “Một đốm lửa nhỏ, dễ cháy thảo nguyên”! Nhưng hiệu quả thực tế thì sao? Hình tượng đó không giống “Bó đuốc” mà chỉ giống “Quả ớt đỏ” vút thẳng lên trời cao! Vì thế, người thiết kế công trình đó đã làm một việc trái với suy nghĩ nghệ thuật nghiêm túc: ý nghĩa tượng trưng của kiến trúc không thể dựa vào “nhãn mác” chính trị để thực hiện. Hiển nhiên sự xuất hiện của hiện tượng “Quả ớt đỏ’ là chịu ảnh hưởng “Ngọn gió kiến trúc kiểu Nga rơi rớt lại”. Mọi người đều biết là Liên Xô những thập niên 20, 30 của thế kỷ 20, giới kiến trúc đã từng thổi bùng lên một luồng “gió xoáy chính trị” của chủ nghĩa hình thức, như đồ án trang trí kiến trúc của các loại: “Ngọn đuốc cờ hồng”, “Búa liềm” và “Bông lúa hạt mạch”, tùy ý bê dùng, đâu cũng có, tha hồ tràn lan trở thành tai họa, thậm chí trong sáng tác kiến trúc còn đem tượng toàn thân lãnh tụ trên nóc tòa lầu cao mười mấy tầng! Sự việc cách đây đã nửa thế kỷ nhưng một số học giả kiến trúc hiện đại vẫn luôn tâm niệm không thể quên được cách xử lý kiến trúc “Tính cụ tượng” (cụ tượng là cụ thể hóa hình tượng một cách thô sơ!) kiểu đồ giải chính trị (kiểu giải thích bằng đồ thị, bằng hình vẽ, mô hình theo ý đồ chính trị) buồn cười đó! Đó là “đem nghệ thuật rải đều đường phố… dùng đèn báo hiệu giao thông và tiếng còi hơi cảnh sát để diễn tấu bản nhạc giao hưởng trang trọng, đồng thời trên nóc nhà xưởng phấp phới ngọn cờ hồng”.
..."

(MỸ HỌC KIẾN TRÚC
Tác giả:Uông Chính Chương
Người dịch: Nguyễn Văn Nam
Hiệu đính: Trần Kim Bảo

Nhà Xuất bản Xây dựng-2002.)

Kóc Khơ Me 27-02-2011 19:11

Kóc không chê hay khen gì cái tên gọi và nội dung của "Chủ nghĩa cấu tạo Nga". Kóc chỉ thấy không thỏa đáng và logic về cách giải thích (lý giải) sự thoái trào của trường phái này vào đầu những năm 30-x tại Liên xô được ghi trong các post của topic này thôi.

Kóc lược dịch một số đoạn nói về nguyên nhân này:

Trích:

Из книга Дворец Советов. Материалы Конкурса 1957-1959 г.г. Москва 1961г.
…..Как известно, для большинства советских архитекторов в период, непосредственно следующий за созданием проекта Дворца Советов 1930-х гг., было характерно односторонне-эстетское понимание архитектуры, пренебрежение к решению ее функциональных и технико-экономических сторон. Было бы неправильным связывать творческую направленность советской архитектуры только с результатами конкурса на проект Дворца Советов. Тем не менее этот конкурс способствовал развитию в советской архитектуре односторонне-эстетских тенденций. …
…. Như đã biết, đối với đa số các nhà kiến trúc xô-viết liên quan trực tiếp đến thiết kế công trình Cung Xô-viết 1930x trong thời kỳ này, thẩm mỹ kiến trúc theo kiểu phiến diện, thoát ly khỏi các khía cạnh kinh tế, kỹ thuật và công năng công trình. Sẽ là sai lầm khi gắn khuynh hướng sáng tạo của các kiến trúc sư xô-viết với kết quả của cuộc thi thiết kế Cung điện Xô-viết. Tuy rằng cuộc thi này phần nào làm phát triển xu hướng thẩm mỹ phiến diện của các nhà kiến trúc xô-viết…

Trích:

…Справедливости ради, следует сказать, что послевоенное новаторство в деле согласованного планирования в строительстве было, в действительности не так уж и ново. Впервые идея "комплектования" районов увидела свет в начале 30-х годов, когда объективно назрела проблема разнобоя в застройке городских кварталов. Независимых архитекторов, каждый из которых работал "в своем стиле" мало волновали вопросы того, как и что будет построено рядом с их домами, каждый пытался выразить себя самостоятельно. Главным образом речь идет об архитекторах "конструктивистах-формалистах", методы работы которых были признаны порочными. По этому в начале 30-х годов деятельность таких архитекторов пришлось серьезно ограничить, а перспективное планирование застройки поручить специально уполномоченным архитектурным институтам.
Đúng ra, chúng ta phải nói rằng sự đổi mới sau nội chiến trong việc lập các kế hoạch về xây dựng không thay đổi mấy trong thực tế. Những ý tưởng về tổ chức khu vực đô thị chỉ phát sinh vào đầu những năm 30-x, khi vấn đề không đồng bộ, không nhất quán trong xây dựng các khu đô thị trở nên bức xúc. Mỗi kiến trúc sư độc lập làm việc theo “kiểu của mình” mà ít quan tâm đến câu hỏi làm thế nào và cái gì sẽ được xây bên cạnh các ngôi nhà, mỗi người cố gắng thể hiện chính cái tôi của mình. Vì thế người ta nói đến khái niệm “chủ nghĩa cấu trúc-hình thức”. Phương pháp làm việc của họ được xác nhận là sai lầm. Vì thế vào đầu những năm 30-x hoạt động của những kiến trúc sư đó đã bị thu hẹp đáng kể, các đồ án qui hoạch, thiết kế xây dựng được giao cho các cơ quan kiến trúc chuyên ngành có uy tín thực hiện.

Trích:

Как пишет М.Г.Бархин в книге "Метод работы зодчего" "... поток бездушной подражательности, легкой и доступной, затопил архитектуру 30 годов. Романтика начала революции, высокий пафос новаторства 20-х годов, даже поиски одиночек начала 30 годов оказались забытыми и незамеченными. Общий недостаток твердых позиций, идеологических, научных и эстетических взглядов ощущался всеми". Таким образом к началу 30 годов сложился явный кризис массовой архитектуры….
М.Г.Бархин đã viết: dòng chảy nhạt nhẽo của sự bắt chước, dễ dãi, tầm thường, đã tràn ngập nền kiến trúc những năm 30-x. Chủ nghĩa lãng mạn thời kỳ đầu cách mạng, sự phấn khích cao độ với cái mới của những năm 20-x, cả việc tìm tòi những hướng đi riêng lẻ đầu những năm 30-x, dường như bị quên lãng và biến mất. Những nhược điểm chung về lập trường cứng nhắc, quan điểm về mỹ học, khoa học, tư tưởng đều cảm nhận được. Vì thế đầu những năm 30-x đã diễn ra cuộc khủng hoảng lớn trong kiến trúc….

Có thời gian Kóc sẽ đi sâu hơn về vấn đề này, chẳng hạn như trường phái “chủ nghĩa cấu trúc” thay vì lấy công năng làm đối tượng thiết kế thì họ lại đề cao vật liệu, đề cao hình khối, rồi do những hạn chế về công nghệ vật liệu thời đó mà các ý tưởng của họ trở nên luẩn quẩn và bế tắc… Nói đến kiến trúc là nói đến một lĩnh vực nghệ thuật. Nó thuộc vào loại thượng tầng kiến trúc rồi! Phải triết lý rồi lý triết nữa, cũng đau đầu lắm chứ không phải là xì xầm nhỏ to theo kiểu úp úp mở mở được!

Kóc Khơ Me 27-02-2011 19:31

Bảy tòa nhà cao tầng ở Moskva, Sự khởi phát và thăng hoa của chủ nghĩa “kinh điển Stalin”

Để chuẩn bị tâm lý khi bàn sâu về "Chủ nghĩa cấu tạo Nga", Kóc post lại các hình ảnh về 7 tòa nhà cao tầng ở Moskva. (đề tài này Kóc đã thấy các bài viết khá hay trong thư mục Kiến Trúc NNN). Vẻ đẹp của phong cách kiến trúc này là không cần phải tranh cãi. Tuy nhiên còn một mảng kiến trúc khác cũng mang tên "Chủ nghĩa kinh điển Stalin".

http://i1178.photobucket.com/albums/...0Em/stalin.jpg

Trích:

Согласно легенде, Сталин сказал примерно так: "Мы выиграли войну и признаны во всем мире как великие победители. Мы должны быть готовы к приезду в наши города иностранных туристов. Что будет, если они пойдут по Москве и не увидят никаких небоскребов? Их сравнения с капиталистическими столицами могут быть не в нашу пользу...".
Có giai thoại cho rằng Stalin đã nói: Chúng ta đã thắng lợi trong chiến tranh và được cả thế giới công nhận như những người chiến thắng vĩ đại. Chúng ta cần chuẩn bị tiếp đón các khách du lịch sẽ đến thăm thành phố chúng ta. Điều gì sẽ xảy ra nếu họ đi ngang Moskva mà không thấy tòa nhà chọc trời nào? Sự so sánh của họ với thủ đô của các nước tư bản có thể không có lợi cho chúng ta….”

Tòa nhà MGU
http://i1178.photobucket.com/albums/...20Em/sk301.jpg

http://i1178.photobucket.com/albums/...i%20Em/MGU.jpg

Tòa nhà Bộ Ngoai Giao (МИД)
http://i1178.photobucket.com/albums/...i%20Em/MID.jpg

http://i1178.photobucket.com/albums/...%20Em/MID2.jpg

Khách sạn Ucraina
http://i1178.photobucket.com/albums/.../KsUkraina.jpg

Nhà cao tầng trên quãng trường Kudrinski
http://i1178.photobucket.com/albums/..._Kudrinski.jpg

Nhà cao tầng trên đường Sadovo-spasski
http://i1178.photobucket.com/albums/...ang_Sadovo.jpg

http://i1178.photobucket.com/albums/...ng_Sadovo2.jpg

Nhà cao tầng trên bờ Kotelniski
http://i1178.photobucket.com/albums/...g_Kotelhiz.jpg

http://i1178.photobucket.com/albums/..._Kotelhiz2.jpg

Khách sạn Leningrad
http://i1178.photobucket.com/albums/...sLeningrad.jpg

http://i1178.photobucket.com/albums/...Leningrad2.jpg

Hình ảnh gốc xem tại đậy.
Bài viết chuyên đề xem tại đây.

Мужик 27-02-2011 20:47

Liên Xô xây cho Ban Lan một tòa ở Vác-sa-va. Bác Kóc có hình ảnh của tòa nhà đó không?

USY 27-02-2011 21:05

Trích:

Мужик viết (Bài viết 79860)
Liên Xô xây cho Ban Lan một tòa ở Vác-sa-va. Bác Kóc có hình ảnh của tòa nhà đó không?

Tòa nhà này ở Varshava đã được NNN nói đến ở đây:
http://diendan.nuocnga.net/showthread.php?t=361&page=2

Kóc Khơ Me 27-02-2011 21:55

Trích:

Мужик viết (Bài viết 79860)
Liên Xô xây cho Ban Lan một tòa ở Vác-sa-va. Bác Kóc có hình ảnh của tòa nhà đó không?

Còn 2 tòa nhà cao tầng được coi là quà tặng của Stalin ở nước ngoài là:

Cung Văn hóa-Khoa học Varsava. Đọc chi tiết tại đây.
http://i1178.photobucket.com/albums/...m/2a1e3ce3.jpg

http://i1178.photobucket.com/albums/...Nauki_2009.jpg

Bên trong
http://i1178.photobucket.com/albums/...m/gotycka1.jpg

http://i1178.photobucket.com/albums/...resowascan.jpg

http://i1178.photobucket.com/albums/...m/kuluary8.jpg

Tòa nhà Hàn Lâm Khoa học Latvi ở Riga. Đọc chi tiết tại đây.
http://i1178.photobucket.com/albums/...akadmija_2.jpg

Bên trong
http://i1178.photobucket.com/albums/...Chi%20Em/1.jpg

http://i1178.photobucket.com/albums/...Chi%20Em/4.jpg

http://i1178.photobucket.com/albums/...Chi%20Em/3.jpg

Kóc Khơ Me 03-03-2011 11:22

Khách sạn Moskva, những cảm nhận ban đầu!

http://i1178.photobucket.com/albums/...Image_0001.jpg

http://i1178.photobucket.com/albums/...Image_0001.jpg

http://i1178.photobucket.com/albums/...Image_0001.jpg

http://i1178.photobucket.com/albums/...Image_0001.jpg

Kóc Khơ Me 03-03-2011 11:31

Cũng là một phong cách kiến trúc!

http://i1178.photobucket.com/albums/...Image_0001.jpg

http://i1178.photobucket.com/albums/...Image_0001.jpg

http://i1178.photobucket.com/albums/...Image_0001.jpg

http://i1178.photobucket.com/albums/...Image_0001.jpg

http://i1178.photobucket.com/albums/...Image_0001.jpg

htienkenzo 24-03-2011 21:44

CHỦ NGHĨA CẤU TẠO NGA, MỘT TRANG RỰC RỠ CỦA KIẾN TRÚC THẾ GIỚI.
 
Thưa các bác!
Hôm nay tôi xin giới thiệu đến các bác bài viết những nghiên cứu, phân tích về Chủ nghĩa Cấu tạo Nga của Phó Giáo sư, Tiến sỹ kiến trúc Tôn Đại, một người đã có nhiều năm làm công tác thiết kế công trình và quy hoạch đô thị ở cơ quan trung ương và địa phương, sau đó về giảng dạy ở đại học. Tôi đưa lên đây chia sẻ cùng các bác để chúng ta hiểu rõ hơn về lịch sử hình thành, sự phát triển cũng như những tư tưởng tiên phong của trào lưu này. Hy vọng các bác yêu thích và đam mê nghệ thuật, trong đó có nghệ thuật Kiến trúc sẽ cảm thấy thú vị!



CHỦ NGHĨA CẤU TẠO
MỘT TRANG RỰC RỠ CỦA KIẾN TRÚC THẾ GIỚI.

Một trào lưu hết sức quan trọng trong lịch sử kiến trúc hiện đại mà thế giới phương Tây cố ý ít nói đến. Các nhà nghiên cứu, một là ít tư liệu, hai là bị hạn chế bởi thế giới quan và lập trường của mình, thường chỉ điểm lướt qua trào lưu này một đôi dòng. Nhưng không một cuốn sách nào không in hình tượng đài Đệ Tam Quốc tế của Tatlin, các phương án nhà chọc trời “Vòng đạp mây” của Lissitzky. Tòa báo Sự Thật Leningrad của Vesnin, những Nhà Văn hóa công nhân của Melnikov, những công trình nhà ở và nhà công cộng của Ghinzburg, Serafimov v. v… Những lý do sau đây giải thích hiện tượng trên: Chủ nghĩa Cấu tạo đã ra đời ở Liên Xô những năm sau Cách mạng tháng Mười, thời gian thịnh vượng không lâu, chỉ chừng mười năm, từ 1920 đến 1930, nhưng những tư tưởng cách mạng và sáng tạo của các kiến trúc sư Xô viết này là tiên tiến nhất thế giới, đã ảnh hưởng rất lớn đến xu hướng hiện đại trong kiến trúc các nước châu Âu, ảnh hưởng sâu rộng đến tận sau này.


Bối cảnh lịch sử:

Đầu thế kỷ 20, trào lưu văn hóa mới đồng thời nảy nở ở nhiều nước phương Tây. Trong nước Nga Sa hoàng, các nghệ sỹ cũng hướng về con đường đổi mới các ngành nghệ thuật nhằm biểu đạt được tinh thần của thời đại máy móc, thời đại phát triển công nghiệp và khát vọng về giải phóng, về tự do. Các ngành nghệ thuật hội họa và điêu khắc từ lâu gắn bó với kiến trúc rất chặt chẽ. Trong trường hợp nước Nga Sa hoàng ta lại thấy rõ ràng một lần nữa sự gắn bó đó. Các họa sỹ Malevitch, Kandinsky, những người tiên phong trong hội họa trừu tượng thế giới, nhà điêu khắc theo chủ nghĩa trừu tượng Tatlin, họa sỹ Lissitzky… là những người đầu tiên đi tìm con đường mới ở nước Nga.
Kandinsky trước đây là một thủ lĩnh của trường phái hội họa biểu hiện. Ông đã cùng với các họa sỹ Marc, Paul Klee, Jaolinsky, Feininger thành lập nhóm “Kỵ sỹ xanh”, một trong hai trung tâm của trường phái biểu hiện. Trung tâm kia là nhóm “Cái cầu” do bốn sinh viên trường Đại học Kiến trúc Dresden thành lập. Khi Đại chiến thế giới thứ nhất bùng nổ, Kandinsky về Nga cùng với Malevitch vẽ tranh trừu tượng. Một số nhà nghiên cứu nghệ thuật cho rằng trường phái nghệ thuật trừu tượng trong hội họa thế giới bắt đầu từ những tranh của hai họa sỹ này.
Malevitch là một thủ lĩnh hội họa lập thể của nước Nga, năm 1912 đã gặp gỡ Fernand Léger ở Paris, một họa sỹ lập thể nổi tiếng. Sau này Malevitch chuyển sang trường phái trừu tượng với mong muốn tự giải phóng khỏi thế giới bế tắc này, tìm một thế giới tươi vui thú vị hơn trong cõi đoạn tuyệt hoàn toàn với thực tại. Khát vọng ấy đưa ông tới việc sáng lập ra “Tối cao luận”.
Mùa Đông năm 1913-1914, nhà điêu khắc Tatlin triển lãm ở Moskva những tác phẩm phù điêu trừu tượng của mình bằng thép, gỗ, carton, thạch cao, kính vỡ và nhựa đường. Tatlin trước đây cũng đã gặp gỡ Picasso ở Paris, chắc chắn sự giao tiếp giữa những nghệ sỹ tiến bộ này cũng quyết định một phần con đường đi của họ.
Sống trong sự ngột ngạt của chế độ Sa hoàng, khát vọng về tự do, về giải phóng luôn luôn nung nấu. Thời gian này, trái tim của những nghệ sỹ tiến bộ cùng nhịp đập với nhân dân lao động Nga. Cách mạng tháng Mười đã giải phóng cho họ mọi xiềng xích. Một chân trời tự do mở rộng ra trước mắt. Các nghệ sỹ được thỏa chí sáng tạo: Chủ nghĩa Cấu tạo ra đời. Trong suốt thời gian từ Cách mạng tháng Mười đến 1930, các nghệ thuật tiến bộ nói chung ở nước Nga cách mạng thường được gọi chung là nghệ thuật của chủ nghĩa Cấu tạo.
Tác phẩm kiến trúc hiện đai đầu tiên gây xôn xao dư luận quốc tế, đánh dấu sự ra đời của một nền kiến trúc tiên tiến cách mạng, đại diện xứng đáng cho kiến trúc Xô viết là tác phẩm của Chủ nghĩa Cấu tạo Nga. Đó là Đài kỷ niệm Đệ Tam Quốc tế do Tatlin sáng tác năm 1920 (hình 1). Tác phẩm này chỉ mới ở dạng mô hình, nhưng đã gây ảnh hưởng lớn trong nghệ thuật kiến trúc hiện đại. Công trình là một khối hình chóp xoắn ốc bằng thép cao 400m. Bên trong hình chóp này có treo ba khối lớn, đó là ba phòng họp.



http://i964.photobucket.com/albums/a...o/TamQuct1.jpg

Hình 1: Đài Đệ Tam QUốc tế - kts. Tatlin

Phương án kiến trúc này lúc ấy là cách mạng nhất thế giới. Ở đây tác giả đã đi trước thời đại khá xa, đã nhìn thấy trước những bước phát triển sau này của kiến trúc hiện đại trong thời kỳ cơ khí hóa cao độ. Công trình có tính tư tưởng cao. Một khối chóp đồ sộ nhưng thoáng nhẹ và vững chãi. Hai dầm xoắn ốc lớn tạo nên một đà phát triển mạnh mẽ vút lên cao, biểu thị sự phát triển của lịch sử loài người theo quy luật biện chứng của chủ nghĩa Marx là phát triển theo hình xoắn ốc có những bước nhảy vọt cách mạng.
Lá cờ đỏ chót vót trên độ cao 400m, chỉ rõ sự lãnh đạo của Quốc tế thứ ba đưa nhân loại cần lao tiến lên xây dựng lâu đài cách mạng của mình. Phương án này có phần nào giống tháp Eiffel ở cột chống choãi ra lồng trong hai dầm xoắn ốc và là điểm tựa cho hai dầm này, lại có chút hình ảnh của một Ziggurat đồ sộ như tháp Babel trong kinh thánh hay tháp Babilon.Nhưng ở công trình này không tĩnh như tháp Eiffel và tháp babilon, nó vươn lên mạnh mẽ bằng các xoắn ốc mềm mại uyển chuyển. Tính động của công trình không chỉ biểu hiện ở hình ảnh tĩnh của một chuyển động vươn lên, mà còn biểu hiện cụ thể với nghĩa đen của từ “động” ấy. Ba khối đồ sộ treo trong khối xoắn ốc lần lượt là các phòng họp. Lớn nhất là khối lập hương nằm dưới cùng, trên nó là một phòng hình kim tự tháp vừa là phòng họp vừa là phòng hoạt động nhóm, trên cùng bé hơn cả là một phòng hình trụ tròn làm nơi trưng bày. Cả ba phòng này treo lơ lửng nhưng lại quay xung quanh trục của chúng theo các nhịp điệu khác nhau.
Trong công trình này, Tatlin đã tiên đoán sự ra đời của kiến trúc động, điều mà ngày nay cũng đang còn trong giai đoạn dự án và thực nghiệm.
Tuy mới chỉ là đề án, là mô hình, nhưng Đài Đệ Tam Quốc tế đã cổ vũ thế hệ kiến trúc sư Xô viết trên con đường sáng tạo nên một nền kiến trúc cách mạng. Đài Đệ Tam Quốc tế có ý nghĩa lý luận rất lớn đối với sự phát triển của kiến trúc hiện đại thế giới, nó luôn luôn chiếm một vị trí quan trọng trong kho tàng lý luận nghệ thuật hiện đại.
Cũng năm 1920, Kazimir Malevitch sáng tạo ra một loạt mô hình kiến trúc đặc biệt mà ông gọi là “Planit”, “Architechtona”. Những sáng tạo của họa sỹ này tuy chỉ là những sơ phác về hình khối theo hội họa lập thể và trừu tượng hình học, nhưng đã góp phần gợi ý về đường nét kiến trúc hiện đại cho các kiến trúc sư tiên tiến trên thế giới.
Cũng năm 1920, Naum Gabo (sinh năm 1890) đưa ra phương án Đài Phát thanh với những đường nét hiện đại đơn giản của các khối hộp. Gabo, một trong những nhà lý luận của chủ nghĩa Cấu tạo đã phát biểu: “Tham vọng của chủ nghĩa Cấu tạo không phải là sáng tác tranh hay tượng mà là những công tình xây dựng trong không gian”. Đúng như vậy, phong trào chủ nghĩa Cấu tạo thoạt đầu hầu hết là các nhà họa sỹ và điêu khắc tham gia, nhưng họ hướng về giải quyết những vấn đề lớn của nghệ thuật không gian gắn với cuộc sống của quần chúng, cho nên họ sáng tạo những tác phẩm kiến trúc.
Một họa sỹ khác là El Lissitzky (1890-1941), trong năm 1920 đã đưa ra hai phương án kiến trúc táo bạo, điển hình cho chủ nghĩa Cấu tạo là “Diễn đàn của Lenin” và “Vòng đạp mây”. Phương án “Diễn đàn của Lenin” (hình 2) là một cột thép nghiêng, kiểu chân cột trồng lên một đế beton hình lập phương sơn màu sẫm. Trên cây cột nghiêng đó, ở độ cao chừng 7m có một bục diễn đàn, trên đó Lenin đứng nói chuyện với quần chúng. Tận cùng của cột nghiêng có gắn một bảng to trên để khẩu hiệu.



http://i964.photobucket.com/albums/a.../DinnLenin.jpg

Hình 2: Diễn đàn Lenin - kts. Lissitzky

Phương án rất giản dị, không một chút trang trí, không một đường cong, toàn bộ cấu trúc của diễn đàn đang ở tư thế động, vươn theo hướng nhô người ra của lãnh tụ. Nhưng phương án “Vòng đạp mây” (hình 3) có tầm vóc và ý nghĩa lớn hơn nhiều. Đó là ba ngôi nhà chọc trời theo dạng đặc biệt: Ngôi nhà thứ nhất có dạng một trụ lớn, trên đặt một nhà hai tầng vươn ra hàng chục mét theo dạng công-sơn. Ngôi nhà hai tầng này phát triển trên không trung nối với ngôi nhà sau cách ngôi nhà thứ nhất chừng 50m. Ngôi nhà sau này gồm một nhà lớn ba tầng khá dài đặt trên hai trụ lớn. Trong các trụ là giao thông theo chiều đứng, gồm hệ thống các thang máy và các hệ thống đường ống kỹ thuật khác. Phương án những ngôi nhà chọc trời phát triển ngang dọc trên hệ thống cột đã đưa ra một dạng công trình kiến trúc cao tầng hiện đại, một quan niệm mới về đô thị: Thành phố không trung.


http://i964.photobucket.com/albums/a...nzo/Vngpmy.jpg

Hình 3: Vòng đạp mây - kts. Lissitzky

(Tạp chí Kiến trúc số 1 và 2 - 1988; Kiến trúc, những vấn đề lý luận và thực tiễn - Nhà Xuất bản Xây dựng 2009)

(Còn tiếp...)

htienkenzo 27-03-2011 06:42

(Tiếp theo)
...

Năm 1925, các kiến trúc sư và nghệ sỹ tạo hình theo chủ nghĩa Cấu tạo thành lập Hội Kiến trúc sư hiện đại. Hội này có nhiều kiến trúc sư tài năng và nhiệt tình cách mạng như anh em Vesnin, Ghinzburg, Leonidov, Ladovsky, Lissitzky… Ba anh em Vesnin là Victor, Leonid và Alexandre sáng tác rất nhiều công trình xuất sắc của chủ nghĩa Cấu tạo. Ngôi nhà Công ty cổ đông “Arkos” ở Moskva do anh em Vesnin xây dựng năm 1924, với kết cấu khung bê tông cốt thép mang tính chất hiện đại, sáng sủa, thân nhà là một khối chữ nhật vuông vắn sáu tầng, trên có một hộp nhỏ khác, hai tầng, có các mảng kính lớn và mái hiên rộng. Cửa hàng bách hóa Krasnopresnensky ở Moskva có mặt nhà rất đơn giản, nhẹ nhàng với các mảng kính lớn đến 4/5 diện tích mặt đứng. Mặt bằng tầng trên lại càng đơn giản hơn, chỉ gồm một buồng lớn hình thang cân, chung quanh bố trí các quầy bán hàng. Cung Văn hóa nhà máy ô tô Ligachov ở Moskva (hình 4) càng bộc lộ rõ tay nghề điêu luyện của anh em Vesnin.


http://i964.photobucket.com/albums/a...enkenzo/10.jpg

Đó là một quần thể gồm một nhà biểu diễn lớn có mặt bằng hình tròn, mái là một chỏm bán cầu, một ngôi nhà từ ba đến bốn tầng mặt bằng hình chữ I lệch, trong có nhiều phòng chức năng câu lạc bộ và học tập. Từ trong ra ngoài công trình này với đường nét đơn giản, những mảng khối lớn, đã biểu hiện một phong cách đàng hoàng, khúc chiết, kết cấu hiện đại, một công trình văn hóa của giai cấp vô sản làm chủ đất nước.

Tiếng tăm về tài nghệ của anh em Vesnin đượcnổi bật trong nhiều cuộc thi thiết kế những công trình công cộng. Trong cuộc thi Cung Lao động Moskva năm 1923, anh em Vesnin đã chiếm giải nhất (hình 5).


http://i964.photobucket.com/albums/a...enkenzo/01.jpg

Công trình đồ sộ này gồm hai phòng họp lớn 2500 chỗ và 8000 chỗ, có một trung tâm phát thanh, nhiều phòng trưng bày, bảo tàng, thư viện và một phòng ăn khổng lồ 6000 chỗ. Bản thiết kế chia thành hai khối, khối hình hộp, trong đó có một tháp chữ nhật vươn lên như nhà chọc trời, trên có cột vô tuyến điện bằng thép, nằm sau khối này là hội trường lớn 8000 chỗ hình ellip. Hia khối đó nối nhau bằng khối chữ nhật ngắn, trong là hội trường 2500 chỗ. Công trình phô trương các hệ khung cứng chịu lực và công năng được giải quyết chặt chẽ. Năm sau, 1924, anh em Vesnin lại chiếm gải nhất trong cuộc thi thiết kế trụ sở Tòa báo Sự Thật ở Leningrad (hình 6).


http://i964.photobucket.com/albums/a...enkenzo/02.jpg

Công trình nằm trên một miếng đất hẹp, mặt bằng vuông mỗi cạnh khoảng 8m. Ngôi nhà năm tầng này thật sự là một lồng kính có phân vị ngang bằng các băng hẹp tại vị trí gần sát mặt sàn mỗi tầng. Mỗi tầng là một buồng văn phòng lớn. Trên mái bằng của ngôi nhà năm tầng này vươn lên một khối hộp cao hơn một tầng nữa, ở đó đặt loa phóng thanh, đồng hồ to hình vuông, trên cùng là một đèn pha lớn. Ngôi nhà này thể hiện tất cả vẻ giản dị và hiện đại của một xã hội công nghiệp phát triển. Những kết cấu chính làm nên đường nét hiện đại này. Một thủ lĩnh của chủ nghĩa Cấu tạo Lissitzsky, đã coi phương án này là mẫu mực điển hình của chủ nghĩa Cấu tạo.

Năm 1930, anh em Vesnin lại chiếm một giải nhất nữa trong cuộc thi quốc tế có rất nhiều kiến trúc sư lỗi lạc tham gia. Nhà hát của anh em Vesnin mang tên “nhà hát hoạt động âm nhạc của quần chúng”. Phương án đã được xây dựng, phòng khán giả được lợp bằng mái vòm có độ cong thấp.

Anh em Vesnin cũng tham gia thiết kế công nghiệp, như xưởng bánh mì do A. Vesnin hướng dẫn sinh viên Sobolev thiết kế năm 1925, thiết kế đập sông Dniev là đập sông lớn nhất hồi đó. Alexandre và Leonid Vesnin cũng thiết kế quy hoạch đô thị. Đồ án thành phố Kuznetsk, thiết kế năm 1930, cùng với bản thiết kế công trình công cộng của thành phố mang rõ rệt tính tiến bộ của chủ nghĩa Cấu tạo: Hệ đường sá và cách bố trí các công trình theo dạng vuông vắn bàn cờ, có đường trục chính đặt chéo 45 độ dẫn đến hai quảng trường trung tâm thành phố.

Một kiến trúc sư trẻ tuổi đầy tài năng và đặc biệt nhạy cảm nổi bật của chủ nghĩa Cấu tạo là Ivan Leonidov (sinh năm 1902).
Leonidov xuất hiện như một ngôi sao sáng với bản thiết kế Học viện Lenin năm 1927 (hình 7).


http://i964.photobucket.com/albums/a...enkenzo/09.jpg

Một khối cao vút cạnh một quả cầu khổng lồ. Những khối này được giữ bằng hệ dây cáp. Quả cầu lớn là giảng đường, nửa dưới là các bậc ghế ngồi, nửa trên là các mảng kính lớn lợp vào hệ dàn thép bố trí theo kinh tuyến và vĩ tuyến. Trong bản thiết kế này, Leonidov đã sử dụng kết cấu treo và động, triệt để tận dụng những thành tựu của kỹ thuật hiện đại đưa vào phương án. Năm sau ông đưa ra bản thiết kế Bộ Công nghiệp và đồ án ngôi nhà Sentro Soyuz (Trung ương hội các hợp tác xã, hình 8).


http://i964.photobucket.com/albums/a...enkenzo/08.jpg

Hai bản thiết kế này là những ngôi nhà cao tầng hình hộp mỏng theo kiểu tấm bảng dựng đứng. Ra đời trước những ngôi nhà hiện đại ngày nay ít nhất vài chục năm, nhưng bản thiết kế này đã xác nhận tác giả trẻ tuổi đi trước thời đại khá lâu. Năm 1930, Leonidov thiết kế Cung Văn hóa Moskva với các công trình có hình khối chữ nhật dài, hình kim tự tháp và một bán cầu lớn (hình 9).


http://i964.photobucket.com/albums/a...enkenzo/07.jpg

Cách sắp xếp các khối rất nên thơ, tạo sự tương phản về tỷ lệ. Chỏm bán cầu bằng kết cấu thép là một mẫu cho các chỏm cầu trắc địa nổi tiếng của Buckminster Fuller sau này. Chẳng những nhạy bén với kỹ thuật hiên đại, tiên đoán được sự phát triển của nghệ thuật kiến trúc sau này, Leonidov còn nhạy bén với cả nhu cầu của cuộc sống xã hội chủ nghĩa của nhân dân. Ông để tâm nghiên cứu lý luận về khu nhà ở xã hội chủ nghĩa và thể nghiệm trong bản đề án một khu dân cư cạnh liên hợp luyện kim Magnitogorsk năm 1930. Bản thiết kế quy hoạch này được xác định bằng một hệ đường theo ô cờ, phân ra các khu vực ở, sinh hoạt vui chơi, học hành, khu vực cây xanh đã có tác dụng trong lý luận về tiểu khu nhà ở hoàn chỉnh xã hội chủ nghĩa.
Hầu hết các bản thiết kế của Leonidov đều mới nằm trên giấy, nhưng ảnh hưởng của chúng rất to lớn, xác định rõ nét sự tìm tòi sáng tạo mạnh dạn và nhạy cảm với cuộc sống mới của thế hệ kiến trúc sư Xô viết đầu tiên.


Kiến trúc sư Moises Ghinzburg may mắn hơn, nhiều công trình của ông đã được xây dựng tồn tại đến ngày nay.Nổi tiếng nhất là ngôi nhà ở tập thể nhiều gia đình, xây dựng năm 1928 – 1929 trên đại lộ Novinsky (nay là Tchaikovsky) ở Moskva, công tác cùng kiến trúc sư P. Milinis. Ngôi nhà ở tầng dưới cùng là một hệ cột, bỏ trống không gian. Các tầng trên là căn hộ. Trong ngôi nhà này, cuộc sống công cộng đã được nghiên cứu thỏa mãn theo tư tưởng đây là tiểu khu có căng tin, bếp tập thể, phòng tập thể dục, thư viện ,vườn trẻ, vườn trên mái bằng. Đồ án dự thi Cung Xô viết của ông cũng là tác phẩm nổi tiếng của chủ nghĩa Cấu tạo.

Kiến trúc sư K. Melnikov nổi tiếng với việc xây dựng sau câu lạc bộ công nhân ở Moskva từ năm 1927 đến 1929. Các câu lạc bộ này hầu hết đều có hình thức mới mẻ, táo bạo và sáng tạo. Câu lạc bộ của nhà máy sư xây dựng nawm1928 có mặt bằng gần giống người dang chân, dang tay. Phần lớn hình quạt, sân khấu là cái đầu của hình người. Điểm nổi bật là phía trên phòng khán giả lớn này là phòng họp 200 chỗ, mặt bằng hình tròn nằm đúng giữa “bụng” của hình người trên mặt bằng. Phong hopcj này nhô cao hẳn lên khỏi khối nhà, bộc lộ rõ cấu trúc bên trong công trình. Trong số sáu câu lạc bộ của Melnikov, người ta thường nói đến câu lạc bộ Rusakov, làm năm 1927 (hình 10). Công trình này cũng điển hình cho xu hướng chủ nghĩa Cấu tạo.


http://i964.photobucket.com/albums/a...enkenzo/06.jpg

Tính chất táo bạo, hiện đại nhưng rất hợp lý về công năng khiến công trình có gia trị cao. Ngoài vài phòng chức năng ở tầng trệt và tầng hầm, toàn bộ công trình là một phòng khán giả lớn hình quạt. Khu vực ngồi của khán giả được tách thành ba khối riêng biệt, nối với nhau bằng cửa sổ mở ra khối cầu thang. Ba khối khán giả này đều hướng về sân khấu, buông đặt máy chiếu phim đặt ở phía dưới khối khán giả, từ đó chiếu lên màn amnhr ở sân khấu. Điều táo bạo thú vị là ba khối ghế này lồi ra mặt đứng thành ba hình hộp lớn, xác định hình thức độc đáo của công trình. Về mặt này, Melnikov đã đưa ra thủ pháp mà mãi sau này, chủ nghĩa Cấu trúc quốc tế những năm 1960 thường sử dụng. Công trình này ngày nay vẫn còn sử dụng tốt, tuy việc bảo quản không được chu đáo lắm. Ngoài các câu lạc bộ, Melnikov còn tham gia làm một số công trình triển lãm. Năm 1923, trong triển lãm Nông nghiệp toàn Liên Xô mở tại Moskva, ông thiết kế gian hàng Makhorka. Năm 1925, lần đầu tiên Liên Xô tham gia triển lãm quốc tế. Đó là triển lãm nghệ thuật trang trí ở Paris, Melnikov được giao thiết kế gian hhangf Liên Xô. Đó là một gian hàng nhốc tường kính lớn, kết cấu gỗ được dùng táo bạo (không che giấu). Gian hàng đã thực hiện được tư tưởng đối lập với sự xa hoa phô trương giàu có của các quốc gia châu Âu khác bằng sự tươi mát và độc đáo nghệ thuật của thời cách mạng.

Trào lưu chủ nghĩa Cấu tạo khá rộng lớn ở Liên Xô. Ngoài những tác giả tiêu biểu trên, phải kể đến nhiều kiến trúc sư khác có những tác phẩm đáng chú ý như Serafimov và Kraves với công trình Bộ Công nghiệp trên quảng trường Dzerjinsky ở Kharkov, xây dựng trong những năm 1925-1933 (hình 11).


http://i964.photobucket.com/albums/a...enkenzo/03.jpg

Đây là quần thể công trình cao từ 8 đến 12 tầng sắp xếp thành vòng tròn. Ở độ cao tầng thứ 6 có những hành lang kín nối các ngôi nhà cao tầng lại với nhau. Đây chính là phác thảo ban đầu của tư tưởng thành phố không trung được thực hiện lần đầu tiên trên thế giới. I. Golosov với câu lạc bộ Zuev ở Moskva (năm 1929), P. Golosov với tòa nhà liên hợp báo Sự Thật ở Moskva (1929-1935). M. Barse và M. Siniavsky với nhà xem vũ trụ ở Moskva có đường kính 29m (1929), Suco và Ghenfrey với nhà hát kịch nói Gorky tại thành phố Rostov trên sông Đông…

Về mặt quy hoạch đô thị, các kiến trúc sư chủ nghĩa Cấu tạo cũng có nhiều cống hiến đáng kể như phương án các thành phố tuyến tính của Lavrov, các quy hoạch đo thị và tiểu khu nhà ở của anh em Vesnin và của Leonidov, làng mang tên Saomian của Salomov v. v…

Về mặt lý luận và đào tạo, ngay từ năm 1920 ở Vkhutema đã mở khoa kiến trúc mà những nhà lý luận đánh giá là cùng với trường Bauhaus ở Đức, là những trường kiến trúc tiến bộ nhất thế giới lúc đó. Năm 1924, M. Ghinzburg xuất bản cuốn “Phong cách và thời đại”, đó là cuốn lý luận đầu tiên của kiến trúc Xô viết. Năm 1926-1927, Malevitch xuất bản ở Đứcmột cuốn lý luận nghệ thuật. Từ năm 1925 đến 1931, Hội KIến trúc sư hiện đại của chủ nghĩa Cấu ttaoj xuất bản một tạp chí lý luận chiến đấu của mình, là tạp chí Kiến trúc hiện đại. Ladovsky đề xuất sơ đồ parabol (hình 12), cấu trúc quy hoạch linh hoạt của thành phố, bảo đảm khả năng phát triển của trung tâm thành phố mà vẫn giữ vai trò là hạt nhân của quy hoạch.


http://i964.photobucket.com/albums/a...enkenzo/04.jpg

Năm 1930, N. Miliutin lại đề xuất dây chuyền công năng phát triển thành phố theo nguyên tắc bố trí khu công nghiệp song song vơi tuyến ở thành phố phát triển theo hai chiều (hình 13).


http://i964.photobucket.com/albums/a...enkenzo/05.jpg

...

Kỳ sau: Tư tưởng chủ đạo.

htienkenzo 27-03-2011 16:56

(Tiếp theo và hết.)

Tư tưởng chủ đạo.


Qua các công trình của các kiến trúc sư theo chủ nghĩa Cấu tạo, chúng ta thấy nổi bật lên quan điểm chính nghĩa của chủ nghĩa Cấu tạo, được phát biểu lần đầu tiên trong tái liệu do Naum Gabo và Pevsner xuất bản ngày 5-8-1920 tại Moskva, nhan đề “Tuyên ngôn của chủ nghĩa Hiện thực” mà sau này được coi như tuyên ngôn của chủ nghĩa Cấu tạo, trong đó lập luận rằng sự tiện nghi về kỹ thuật và công năng của hình thức kiến trúc mới xuất phát từ việc sử dụng mọi cách trong quá trình sáng tác các phương pháp thiết kế khoa học, cho rằng sự phát triển của kỹ thuật xây dựng và khoa học ứng dụng như âm học, quang học… yêu cầu của kiến trúc sư phải có thái độ mới đối với cơ sở công năng kết cấu của ngôi nhà. Các kiến trúc sư theo chủ nghĩa Cấu tạo cố gắng tập trung trí tuệ giải quyết những vấn đề phức tạp của công cuộc xây dựng đất nước. Họ quan niệm rằng kiến trúc có vai trò giáo dục rất lớn, cho nên rất chú ý đến việc sáng tác các câu lạc bộ công nhân, những công trình trường học và ngay trong các ngôi nhà ở nhiều căn hộ, các công trình công cộng khác họ đều chú ý đến giáo dục thẩm mỹ cho quần chúng, đưa lại những tiện nghi cho cuộc sống tập thể của quần chúng.
Một số nhà lý luận phương Tây cho rằng chủ nghĩa Cấu tạo Nga là thừa kế của trường phái Vị lai Italya-qua việc Marinetti có đến Moskva và Petrograd vào năm 1914. Có một số điểm giống nhau gây nên nhận định trên. Chủ nghĩa Cấu tạo ca ngợi thời đại cơ khí hóa, tự động hóa, ca ngợi cuộc sống mạnh mẽ, thay đổi với tốc độ như vũ bão thể hiện ở những đề án kiến trúc động, kiến trúc treo, những đô thị không trung… Nhưng hoàn toàn không giống một chút nào với tuyên ngôn của chủ nghĩa Vị lai do nhà thơ Marinetti công bố. Ngày 20-2-1909 trên tờ Le Figaro ở Pháp với những lời lẽ điên cuồng: “Chúng tôi muốn phá hủy các viện bảo tàng… nghệ thuật chỉ có thể là bạo lực, tàn ác, bất công…”, “Chúng tôi ca ngợi chiến tranh, chủ nghĩa quân phiệt, chủ nghĩa yêu nước, cử chỉ phá phách của những người vô chính phủ, những ý tưởng đẹp buộc người ta phải chết, sự khinh rẻ phụ nữ…”. Các họa sỹ Vị lai ca ngợi sự phá phách chứ không phải là xây dựng, ca ngợi máy móc, coi là hạt nhân chủ đạo của thế giới có tốc đọ cao tiến tới ca ngợi chiến tranh. Những tư tưởng này hoàn toàn xa lạ với chủ nghĩa Cấu tạo Nga, tìm tòi các biện pháp táo bạo và cách mạng để giải quyết những vấn đề khó khăn trong việc xây dựng cơ sở vật chất cho chủ nghĩa Xã hội. Sự lầm lẫn này của một số nhà lý luận trên cong do nguyên nhân họ gộp chủ nghĩa Cấu tạo trong kiến trúc và phong trào “văn hóa vô sản” những năm đầu cách mạng mà phong trào này có một số lệch lạc, phủ nhận những di sản của thời đại trước, muốn “nổ súng vào những bức tường của viện bảo tàng”. Với tư tưởng phá phách tàn bạo như trên, không lạ gì ta thấy sau này Marinetti trở thành lý luận gia chủ yếu về thẩm mỹ của chủ nghĩa Phát xít ở Italya.



Những ảnh hưởng.

Ảnh hưởng của chủ nghĩa Cấu tạo rất to lớn. Nhà lý luận nghệ thuật Pháp hiện đại Michel Ragon cho rằng ảnh hưởng của các nghệ sỹ và kiến trúc sư Liên Xô thời kỳ này với kiến trúc của Đức, Pháp, Hà Lan là đáng kể và thành quả kiến trúc Liên Xô những năm từ 1920 đến 1930 là không có gì so sánh được. Trước cách mạng, một số nghệ sỹ Nga đã có quan hệ với một số nghệ sỹ nổi tiếng thế giới như đã trình bày ở trên. Sau Cách mạng tháng Mười, mối quan hệ này ngày càng tăng cường, khiến ảnh hưởng của chủ nghĩa Cấu tạo ngày càng trở thành rõ rệt ở châu Âu. Năm 1021, Lissitzky đã gặp gỡ các họa sỹ trường Bauhaus, một trung tâm kiến trúc-nghệ thuật quan trọng châu Âu. Năm 1922, Lissitzky lại gặp họa sỹ Theo Van Doesburg, một sáng lập viên của nhóm “De Stijl”, phong trào ở Hà Lan có mục tiêu “đổi mới tận gốc nghệ thuật”. Qua hai cuộc tiếp xúc trên và qua đợt công tác của Malevitch ở trường Bauhaus trong những năm 1926 và 1927, chúng ta có thể tin rằng chủ nghĩa Cấu tạo ở Liên Xô và trường phái Bauhaus có sự giao lưu về quan điểm nghệ thuật tiến bộ. Hơn nữa, chủ nghĩa Cấu tạo có ảnh hưởng đến các nghệ sỹ Bauhaus. Ví dụ như một trong những mô hình câu lạc bộ công nhân của Malevitch làm năm 1925 ở Moskva có những đường nét gợi ý cho một công trình nổi tiếng của Mies Van de Rohe là gian hàng Đức tại hội chợ quốc tế ở Barcelona năm 1929.

Ảnh hưởng qua lại của chủ nghĩa Cấu tạo Nga và trường phái Bauhaus còn thấy khá rõ ở hai phương án xuất hiện gần như cùng một lúc là Cung Lao động đoạt giải nhất của anh em Vesnin và Tòa báo Diễn đàn Chicago của Gropius. Cả hai phương án đều có hình dáng bên ngoài khá giống nhau: một vài khối hộp gắn vào nhau, trong đó có một khối cao vút lên. Cả hai đều bộc lộ toàn bộ hệ khung beton cốt thép và đấy là biểu hiện thẩm mỹ chủ yếu của phương án.
Những mô hình kiến trúc gọi là “Planit” hoặc “Architechtona” của Kazimir Malevitch làm trong những năm 1920-1922 đã là hình ảnh của quần thể Rockefeller Center sau này ở New York.
Tuy chỉ mới ở trạng thái bản thiết kế, nhưng các ý đồ táo bạo của Leonidov có ảnh hưởng rất mạnh mẽ. Nhiều nhà Lý luận đánh giá ông đã đi treoecs những kỹ sư kiến trúc nổi tiếng táo bạo sau này đến hàng chục năm như Le Ricolais, Buckminster Fuller, Paul Maymont, Yona Friedman. Phương án Bộ Công nghiệp (1928) của ông báo hiệu sự ra đời sau này của tòa nhà Bộ Giáo dục ở Rio de Janeiro của Luis Costa và Oscar Niemeyer được sự cố vấn của Le Corbusier và cũng báo hiệu cả tòa nhà trụ sở Liên hợp quốc ở New York nữa. Phương án công trình Sentro Soyuz của Leonidov cũng như phương án nhà ở công cộng của Ghinzburg rõ ràng có ảnh hưởng đến phương án “Đơn vị ở” nổi tiến của Le Corbusier ở Marseille sau này. Hơn nữa, ngày nay người ta cũng biết rằng Ghinzburg và Le Corbusier đã từng gặp gỡ, quan hệ với nhau.

Về tư tưởng đô thị không trung thì quả là “Vòng đạp mây” của Lissitzky đã đi trước “Tokyo 60” và phương án tái thiết vùng Suzuki của Kenzo Tange gần nửa thế kỷ. Công trình Bộ Công nghiệp ở Kharkov của Serafimov và Craves năm 1925 cũng là một hiện thực đầu tiên về đô thị không trung trên thế giới. Tư tưởng trên được phát triển vào những năm 1970 ở nước Cộng hòa Xô viết Gruzia bằng công trình Bộ Công nghiệp, đường xe hơi của các kiến trúc sư G. Trakhaxa và Gialagania.

Ảnh hưởng của chủ nghĩa Cấu tạo rất mạnh mẽ ở Liên Xô, không chỉ có các nghệ sỹ trẻ tham gia mà dần dần cả những kiến trúc sư lớn tuổi có nhiều công trình xây dựng trước Cách mạng cũng bị lôi cuốn và sáng tác nhiều công trình hiện đại đáng chú ý. Kiến trúc sư Suchev là một trường hợp như vậy. Công trình Bộ Coonng nghiệp của ông ở Moskva xây dựng năm 1928-1933, thể hiện rõ tinh thần hiện đại của trào lưu mới. Phương án công trình Trung tâm Điện tín ở Moskva được giải nhất cuộc thi năm 1925 mang rõ tính chất của chủ nghĩa Cấu tạo với những khối hộp có mảng kính lớn, phong cách hoàn toàn hiện đại tương tự như văn phòng Tòa báo Sự Thật Leningrad của anh em Vesnin cũng được giải trước đó một năm. Về quy hoạch đo thị thì đề án quy hoạch cải tạo Moskva mang tên “Moskva mới” của ông chủ trì năm 1923 có nhiều ngôi nhà chọc trời bao bọc lấy trung tâm thành phố như những cầu treo theo tinh thần của chủ nghĩa Cấu tạo lúc đó.

Ảnh hưởng của chủ nghĩa Cấu tạo ra nước ngoài cũng rất mạnh mẽ. Nhiều nghệ sỹ lớn các nước khác cũng tham gia vào chủ nghĩa Cấu tạo như Mondrian, Vantongerloo, Rietveld, C. van Easteren thuộc nhóm De Stijl-Hà Lan, Le Corbusier… Đặc biệt Le Corbusier say mê chủ nghĩa Cấu tạo Nga. Ông đã sang Moskva nhiều lần tham gia các cuộc thi kiến trúc quốc tế do Liên Xô tổ chức, giảng chuyên đề trong trường đại học và cộng tác với kiến trúc sư Liên Xô, Nikolai Koli xây dựng một công trình lớn tại Moskva gọi là Lâu đài Sentro Soyuz (Lâu đài Trung tâm hợp tác), một trong những kiệt tác của ông.

Chủ nghĩa Cấu tạo trong kiến trúc Liên Xô là một trào lưu tiến bộ nhất thế giới bấy giờ. Suốt trong 10 năm, từ 1920 đến 1930, đã liên tiếp đề ra những ý đò hiện đại trong dây chuyền công năng của các công trình kiến trúc, giải quyết những vấn đề lớn của kiến trúc xã hội chủ nghĩa là nhà ở tập thể, công trình văn hóa phúc lợi của nhân dân lao động, quy hoạch các khu dân cư theo tinh thần xã hội chủ nghĩa, giả quyết một cách đẹp đẽ mối quan hệ giữa hình thức và nội dung kế hoạch trong thời đại kỹ thuật tiên tiến. Kết cấu chịu lực chính của công trình không bị che giấu đi mà được bộc lộ một cách tự nhiên, tạo nên vẻ đẹp hiện đại mà đơn giản. Công năng của công trình được đặc biệt tôn trọng và cũng thể hiện ra hình thức bên ngoài, có khi qua những mảng tường kính trong suốt.

Trong những năm đầu cách mạng, các ngành văn hóa nghệ thuật khác cũng phát triển mạnh mẽ trên con đường mới tự do thênh thang do Cách mạng đem lại. Một bộ phận cực đoan đã đi những bước sai lầm, nhất là văn học trong phong trào “Văn hóa vô sản”. Những sai lầm đó phần nào làm lu mờ chủ nghĩa Cấu tạo trong kiến trúc. Tuy nhiên ảnh hưởng của nó đã lan khắp châu Âu. Ngoài những công trình đã được xây dựng ở nhiều thành phố Liên Xô chủ yếu là ở Moskva, các phương án và các đề án táo bạo khác tuy mới chỉ là phác thảo trên giấy đã mang một ý nghĩa quan trọng trong lý luận kiến trúc. Nhiều đề án đã đi trước thời đại hàng chục năm. Chủ nghĩa Cấu tạo đã đóng góp cho sự hình thành chủ nghĩa Công năng châu Âu, một trào lưu kiến trúc quan trọng bậc nhất của kiến trúc hiện đại thế giới.

Chủ nghĩa Cấu tạo là một trang rực rỡ của lịch sử kiến trúc hiện đại thế giới./.



Cảm ơn sự quan tâm theo dõi của mọi người! :emoticon-0150-hands
- Kenzo Tiến -

P/s: Có thời gian, tôi sẽ trở lại phân tích thêm về chủ đề này.

Kỳ sau: "Xây dựng" những công trình không bao giờ được xây dựng.
(Phần các kiến trúc sư, kỹ sư dùng những dữ liệu và tính toán trên lý thuyết để có được công trình (đa phần các công trình của chủ nghĩa Cấu tạo) trở thành hiện thực-thực tế như thế nào.)

cyxovi 13-05-2011 04:27

Tôi thấy những bức ảnh những công trình những thời kỳ đầu thường là mô hình, ảnh đen trắng hoặc ảnh sau này.
Khi đọc bài này của bác kenzo tôi nhớ ra trong máy có một bức hình chụp màu (hay tô màu??) từ năm 1931:
http://img830.imageshack.us/img830/3...8b6e6d3e90.jpg
Дом культуры завода «Каучук»


http://img189.imageshack.us/img189/4...dbcf827311.jpg

Советская площадь


http://img823.imageshack.us/img823/1...135b3fdbea.jpg

Советская площадь. Институт Ленина


http://img3.imageshack.us/img3/7929/...843552d43c.jpg

Дом культуры имени С. М. Зуева


http://img41.imageshack.us/img41/948...74ec789439.jpg

Клуб Русакова Союза Коммунальников

http://img638.imageshack.us/img638/8...dcc315d46c.jpg

Фабрика-кухня №1

Đây có phải là cái mà bác nói đến không?

htienkenzo 13-05-2011 10:20

Trích:

cyxovi viết (Bài viết 85878)
Tôi thấy những bức ảnh những công trình những thời kỳ đầu thường là mô hình, ảnh đen trắng hoặc ảnh sau này.
Khi đọc bài này của bác kenzo tôi nhớ ra trong máy có một bức hình chụp màu (hay tô màu??) từ năm 1931:
http://img830.imageshack.us/img830/3...8b6e6d3e90.jpg
Дом культуры завода «Каучук»

...

"Каучук" tiếng Nga nghĩa là gì vậy bác? Em "phát âm" nghe có vẻ "Việt Nam". Không biết có phải là... "Cấu trúc" không? :-? Hì!...

Saomai 13-05-2011 12:06

Trích:

htienkenzo viết (Bài viết 85894)
"Каучук" tiếng Nga nghĩa là gì vậy bác? Em "phát âm" nghe có vẻ "Việt Nam". Không biết có phải là... "Cấu trúc" không? :-? Hì!...

@ Bác Kenzo à, liên tưởng của bác rất thú vị, chỉ tiếc là không đúng. Каучук là Cao su. Dòng chữ ấy đầy đủ nghĩa là: Câu lạc bộ Cao su - Công trình kỷ niệm 10 năm cách mạng Tháng Mười. Do vậy, có lẽ công trình này là Nhà văn hóa của xí nghiệp Cao su, xây dựng năm 1927 (?).

ninh 13-05-2011 15:27

Trích:

htienkenzo viết (Bài viết 81842)
(Tiếp theo và hết.)...
Công trình Bộ Công nghiệp ở Kharkov của Serafimov và Craves năm 1925 cũng là một hiện thực đầu tiên về đô thị không trung trên thế giới.
...

Tôi định chỉ lướt xem, nhưng đọc xong mấy chữ này thấy "ngứa ngáy toàn thân", phải đăng nhập để viết vài dòng.
Bộ Công nghiệp - tôi chưa từng nghe, nhưng Госпром là công trình nổi tiếng bậc nhất ở Kharkov, tới mức không có bộ ảnh Kharkov nào thiếu nó. Nó nằm ở đáy "củ hành" (Quảng trường Dzerjinskiy, nay là quảng trường Tự do), nhà số 5, còn hai bên hông "củ hành" là hai tòa nhà Đại học quốc gia Kharkov (KhGU), phần "dọc hành" là nơi diễn ra các cuộc diễu hành, duyệt binh của Ucraina. Nơi đây, phi công Đức cũng chụp rất nhiều ảnh - tôi có đăng trong topic "Kharkov có phải ...?".
Xin mời các bác xem http://wikimapia.org/12655/Gosprom :emoticon-0115-inlov

ninh 17-05-2011 13:37

Tòa nhà GOSPROM (3D) trên bản đồ vệ tinh Google - nét vẽ màu trắng (còn 2 tòa nhà KhGU là ảnh thường (2D).

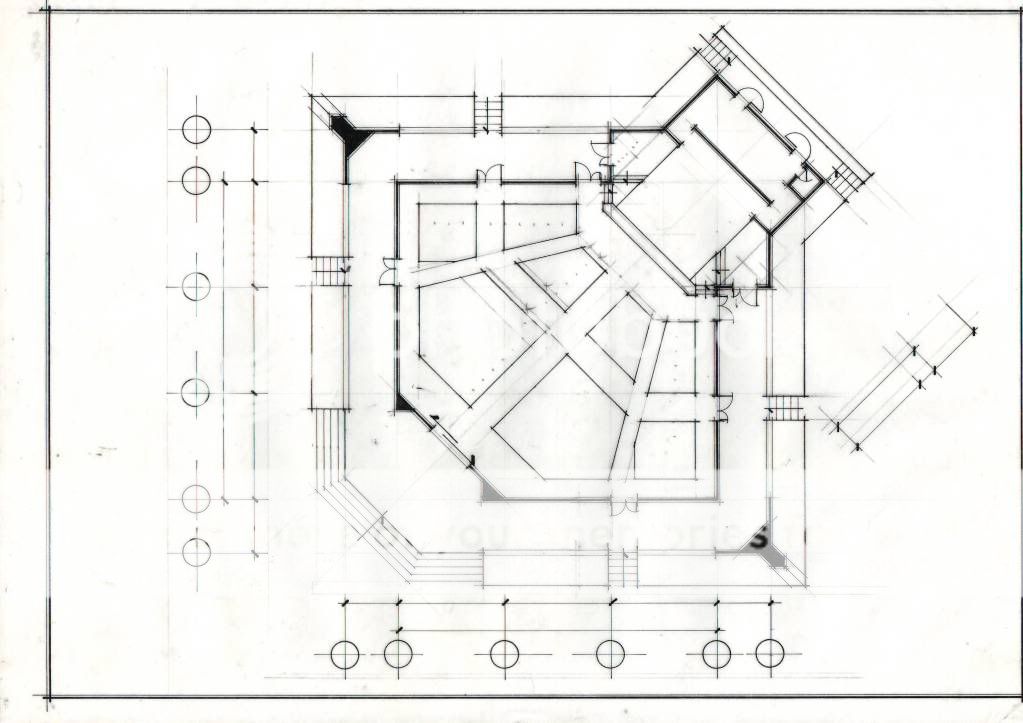
htienkenzo 15-09-2011 09:41

Chủ nghĩa Cấu tạo Nga thực sự quyến rũ và cuốn hút htienkenzo!
 
Thưa các bác!
Ngay từ thuở ban đầu khi tiếp xúc với Chủ nghĩa Cấu tạo Nga-thời sinh viên cho đến tận bây giờ-sống và làm nghề, tôi thực sự yêu thích và đam mê Chủ nghĩa Cấu tạo Nga: Những tư tưởng và cấu trúc vượt thời gian.
Trong khả năng và sự hiểu biết hạn hẹp của mình, tôi luôn cố gắng tiếp thu và vận dụng tư tưởng của Trào lưu ấy vào những Đồ án thời sinh viên và cả những Đồ án thực tế sau này. Hôm nay tôi xin mạo muội chia sẻ cùng mọi người tâm tư ấy qua một vài Đồ án mà tôi đã cố gắng thực hiện, thuyết phục chủ đầu tư, giải trình mạch lạc với những kỹ sư kết cấu để công trình có thể thực hiện được-ít nhất là trên lý thuyết dựa vào cơ sở các dữ liệu tính toán.


Công trình: Nhà thờ Đảo Phú Quý - Bình Thuận.
Công trình đã hoàn tất Hồ sơ Thiết kế kỹ thuật sau khi đã trải qua các buổi bảo vệ trước Hội đồng Giám mục-Tòa Giám mục Phan Thiết; các ban ngành liên quan.


Phác thảo hoàn thiện ý tưởng của htienkenzo:

http://i964.photobucket.com/albums/a...nzo/img011.jpg


Bản vẽ được thực hiện trên máy tính và mô hình của Họa viên-Kỹ thuật viên:

http://i964.photobucket.com/albums/a.../NHTHOPHQU.jpg


P/s:Tôi sẽ chụp các bản vẽ kỹ thuật cơ bản sau.

Cảm ơn sự quan tâm của các bác! :emoticon-0150-hands

Old Tiger 15-09-2011 22:46

Trích:

htienkenzo viết (Bài viết 94091)

Chúa toàn năng! Chúa ở trên cao! Theo trường phái cái gì đó của LX...? Nhà thờ vươn ra. Cây Tháng giá ở trên cao. Những thằng phơi trên 40 nắng và không chịu lấy vợ, đi qua đây kiểu gì cây Tháng giá cũng rớt xuống và đè vỡ... tim hắn! :emoticon-0136-giggl

htienkenzo 16-09-2011 08:33

Trích:

Old Tiger viết (Bài viết 94152)
Chúa toàn năng! Chúa ở trên cao! Theo trường phái cái gì đó của LX...? Nhà thờ vươn ra. Cây Tháng giá ở trên cao. Những thằng phơi trên 40 nắng và không chịu lấy vợ, đi qua đây kiểu gì cây Tháng giá cũng rớt xuống và đè vỡ... tim hắn! :emoticon-0136-giggl

He!... He!...
Bác cứ dọa iem! :emoticon-0102-bigsm
Em cứ theo nguyên tắc "miếng cứng" liên kết với "miếng cứng" tạo thành một "miếng cứng" khác. Cho dù trong "miếng cứng" có những "liên kết mềm". :emoticon-0136-giggl
Về cơ bản, cấu trúc phải có sự "cân bằng" và "ổn định" thì iem cứ gọi là ... yên tâm! Jesus Christ sẽ luôn phù hộ em, bác ạ! Để em post các bản vẽ kỹ thuật và sơ đồ khung cho các bác xem nhé! :emoticon-0150-hands

htienkenzo 16-09-2011 10:08

Trích:

htienkenzo viết (Bài viết 94091)
...
Công trình: Nhà thờ Đảo Phú Quý - Bình Thuận.
Công trình đã hoàn tất Hồ sơ Thiết kế kỹ thuật sau khi đã trải qua các buổi bảo vệ trước Hội đồng Giám mục-Tòa Giám mục Phan Thiết; các ban ngành liên quan.


Phác thảo hoàn thiện ý tưởng của htienkenzo:

http://i964.photobucket.com/albums/a...nzo/img011.jpg

...

http://i964.photobucket.com/albums/a.../Scan10045.jpg
MẶT BẰNG CÔNG TRÌNH


http://i964.photobucket.com/albums/a.../Scan10047.jpg
MẶT BẰNG MÁI


http://i964.photobucket.com/albums/a.../Scan10048.jpg
MẶT BẰNG KHUNG


http://i964.photobucket.com/albums/a.../Scan10044.jpg
MẶT ĐỨNG HƯỚNG BIỂN ĐÔNG


http://i964.photobucket.com/albums/a.../Scan10049.jpg
MẶT BÊN

Độ vươn từ chân đế ra đến đỉnh mái là 15m

LyMisaD88 14-10-2011 15:36

Có nhiều tòa nhà mới hình dáng rất lạ, không hiểu thuộc trường phái gì.
Tòa nhà này nằm cạnh Metro Ki-ep:

http://i1127.photobucket.com/albums/...n/untitled.jpg

htienkenzo 14-10-2011 16:39

Trích:

LyMisaD88 viết (Bài viết 96620)
Có nhiều tòa nhà mới hình dáng rất lạ, không hiểu thuộc trường phái gì.
Tòa nhà này nằm cạnh Metro Ki-ep:

http://i1127.photobucket.com/albums/...n/untitled.jpg

Theo em nghĩ, công trình này thuộc trường phái (hay đúng hơn là phong cách) kiến trúc Biểu hiện-Expressionism. Đây là một trào lưu nghệ thuật xuất hiện ở châu Âu vào khoảng cuối thế kỷ XIX đầu thế kỷ XX. Nó nhấn mạnh cảm xúc của chính người sáng tạo ra nó: Họa sỹ, Nhạc sỹ, Văn sỹ, Kiến trúc sư...

Các bác có thể xem qua công trình cũng thuộc phong cách Biểu hiện này- OPERA SYDNEY:

http://i964.photobucket.com/albums/a...ils_edit02.jpg

http://i964.photobucket.com/albums/a...ra_House_1.jpg

Kóc Khơ Me 15-10-2011 11:29

Nhà nhiếp ảnh người Pháp Frédéric Chaubin đã có 8 năm lang thang qua 14 nước Cộng hòa thuộc Liên Xô cũ để ghi lại các công trình kiến trúc được xây dựng từ thập kỷ 70 của thế kỷ trước. Ống kính của ông đã ghi lại các công trình kiến trúc theo trường phái Constructive mà ông gọi là Kiến trúc “thế kỷ thứ 4”. Các tác phẩm được xuất bản trong sách “Các công trình kỳ vĩ thời Xô-Viết” (Грандиозные советские сооружения).

Nhà nghỉ Hữu Nghị ở Crưm
http://i1178.photobucket.com/albums/...structive1.jpg

Khoa Kiến trúc trường ĐH Bách khoa Bê-la-rus
http://i1178.photobucket.com/albums/...structive3.jpg

http://i1178.photobucket.com/albums/...structive4.jpg

Trung tâm nghiên cứu Năng lượng Mặt trời ở Tasken
http://i1178.photobucket.com/albums/...structive6.jpg

http://i1178.photobucket.com/albums/...structive9.jpg

http://i1178.photobucket.com/albums/...structive8.jpg

Đài Hỏa táng ở Kiev
http://i1178.photobucket.com/albums/...tructive11.jpg

http://i1178.photobucket.com/albums/...tructive13.jpg

Kóc Khơ Me 15-10-2011 12:13

Trích:

LyMisaD88 viết (Bài viết 96620)
Có nhiều tòa nhà mới hình dáng rất lạ, không hiểu thuộc trường phái gì.
Tòa nhà này nằm cạnh Metro Ki-ep:

Tòa nhà này có tên gọi là Trung tâm Thương mại Legion III (Бизнес-центр Легион III). Vẻ bề ngoài tòa nhà có hình dạng con tàu đang cập bến là Nhà ga Kiev. Tòa nhà thuộc loại "A" về sự hiện đại với các văn phòng cho thuê tổng diện tích khoảng 100 ngàn m2. Đây là kiến trúc "Неоконструктивизм" (Chủ nghĩa Tân Cấu tạo), một trường phái kiến trúc đầy năng động ở Moskva sau khi kiến trúc kiểu Luzhkov chấm dứt ("Лужковский "историзм"") cách đây hơn 10 năm.

http://archblog.ru/articles/171208/03.jpg

Minsk1984 15-10-2011 12:45

[QUOTE=Kóc Khơ Me;96697]Nhà nhiếp ảnh người Pháp Frédéric Chaubin đã có 8 năm lang thang qua 14 nước Cộng hòa thuộc Liên Xô cũ vào thập kỷ 70 của thế kỷ trước. Ống kính của ông đã ghi lại các công trình kiến trúc theo trường phái Constructive mà ông gọi là Kiến trúc “thế kỷ thứ 4”. Các tác phẩm được xuất bản trong sách “Các công trình kỳ vĩ thời Xô-Viết” (Грандиозные советские сооружения).


Khoa Kiến trúc trường ĐH Kỹ thuật Bê-la-rus
http://i1178.photobucket.com/albums/...structive3.jpg

Bác KOK xem lại cái thông tin này tý:
- Cái tòa nhà này được xây dựng vào những năm 80. Tôi còn nhớ là khi tôi học năm thứ nhất (1979) chưa có tòa nhà này. Vì vậy nếu nhà nhiếp ảnh này đi lang thang ở Liên xô vào thập niên 70 của thể kỷ trước thì chưa thể có tấm hình này được.
- Hôi đó, Trường này có tên là Đại học Bách khoa Belorussia (BPI) chứ không phải là ĐH Kỹ thuật Belarus.
- Phải đến năm thứ 3 (1982) tòa nhà này khai trương. Tất cả các khoa liên quan đến xây dựng đều chuyển ra đây, chứ kg riêng gì khoa kiến trúc.

Kóc Khơ Me 15-10-2011 13:00

Kóc sorry vì cái tội cẩu thả! Chính xác là chưa rõ trong 8 năm từ năm nào đến năm nào!. Nguyên văn đoạn Kóc dịch: "Фотограф Фредерик Шобэн (Frédéric Chaubin) представил новую книгу, посвященную архитектуре советского времени, начиная с 1970 – так называемая архитектура «четвертого века» по 1990 год. Фредерик Шобэн главный редактор французского журнала Citizen, объездил весь бывший Советский Союз около 14 республик и представил в своей книге около 90 фотографий. Не один год, а целых 8 лет путешествовал фотограф по странам нашей необъятной Родины. Книга «Грандиозные советские сооружения» является коллекцией архитектурной фотографии."

Còn hình thì Kóc đã chú thích nhưng hơi xâu nên không post lên
http://i1178.photobucket.com/albums/...structive2.jpg

Kóc Khơ Me 16-10-2011 19:20

Chủ nghĩa Cấu Tạo đang sẵn sàng
Конструктивизм в тапочках

Triều đại kiến trúc kiểu Luzhkov đã chấm dứt. Ở Moskva có kiểu kiến trúc mới đang thịnh hành.
Phong cách kiến trúc ở Moskva đã thay đổi. Cách nay vài năm tạp chí “Itogi” đã có những bài viết về những xu hướng mới trong kiến trúc Moskva, về chủ nghĩa lịch sử, về “phong cách Nga”, về các tòa tháp, về những kiểu kiến trúc mà Yuri Luzhkov yêu thích cũng như chỉ để làm ông ta vui lòng mà các nhà kiến trúc đã gán ghép vào hầu hết các công trình.

Ngày nay người ta thích những kiểu khác, những cái đơn giản, những hình khối hình học cân xứng, những đường thẳng, những bức tường trơn trắng, loại bớt các trang trí màu mè. Kiểu kiến trúc ấy làm nhớ lại Moskva những năm 20, về kiến trúc Nga tiên tiến, đặc biệt là phong cách của Chủ nghĩa cấu trúc. Vì vậy phong cách kiến trúc mới ở Moskva còn được gọi là phong cách “Tân Cấu Trúc” (неоконструктивизм)

Trào lưu Tân Cấu trúc tất nhiên sẽ làm thức dậy phong cách kiến trúc những năm 2x của thế kỷ trước với những phát hiện mới. Bởi chính những điều đó, những kiểu cách mang tính tiên phong của những công trình đã mang đến vinh quang cho các nền kiến trúc Nga. Trên thế giới chúng được biết đến nhiều hơn trong nước, ở nước ngoài từ lâu người ta đã in ấn rất nhiều các sách chuyên khảo và các album ảnh của hầu hết các nhà kiến trúc bậc thầy của những công trình trong nước những năm 20, nhiều tài liệu được biên soạn bởi chính các tác giả trong nước. Những bậc thầy như Konstantin Melnikov, Yakov Chernikhov, Ivan Leonidov, đã đi vào lịch sử kiến trúc và nghệ thuật cũng giống như Malevich, Lishitzhsk hoặc Tatlin. Ở nước Nga, các công trình mang tính tiên phong không những ít được biết đến mà còn bị đánh giá chưa đầy đủ.

Công trình được nhiều người biết và được bảo tồn một cách tốt nhất cho đến ngày nay là Lăng Lê-nin (mặc dù khi được ốp đá granit vào năm 1929 trông nó không giống phong cách của chủ nghĩa cấu trúc mà giống với cái nhà ga metro kiểu Stalin). Tuy nhiên đây chỉ là trường hợp ngoại lệ.

Ngày nay ở Moskva có gần 200 công trình mang tính tiên phong, trong đó khoảng 50 công trình là các tuyệt phẩm, nhưng chỉ một ít được công nhận di tích lịch sử và văn hóa được Nhà nước bảo vệ. Đa số còn lại đang trong tình trạng thảm hại: hoặc bị thay đổi xây dựng lại, hoặc bị lãng quên và dần bị hư hỏng, hoặc đơn giản là bị phá dỡ đi. Những tòa nhà đó từng là biểu tượng của ảo vọng xô-viết, đang dần dần biến thành những đống hoang tàn đổ nát.

1./ Thành phố Tư bản – Cái đẹp Cộng sản

Tất nhiên bất kỳ sự phân chia cụ thể thời điểm đều rất khó. Những gì đã diễn ra trong kiến trúc Moskva những năm 90 có tên gọi rất khác nhau: phong cách lịch sử, phong cách Hậu Hiện đại, phong cách chiết trung. Nhưng điều rõ ràng đó là những kiến trúc không đẹp. Những gì xuất hiện ngày hôm nay tốt hơn đáng kể cho dù việc xác định chính xác nó cũng khá khó khăn. Người ta chấp nhận gọi nó là “Tân Hiện đại”, hàm chứa trong nó cả các yếu tố của chủ nghĩa tối giản, hi-tech, chủ nghĩa phi cấu trúc. Tuy nhiên những mảnh rời rạc này lại thể hiện một xu hướng mạnh mẽ, định hướng dựa trên Chủ nghĩa Cấu trúc, tên gọi nổi tiếng của phong cách kiến trúc Nga trong thế kỷ XX.

Tất nhiên các nhà kiến trúc là người thừa kế các giá trị truyền thống, nhưng sẽ là buồn cười nếu nói rằng họ sẽ tiếp tục sự nghiệp của các tiền bối Melhikov-Leonidov. Việc đó không chỉ bị giới hạn bởi tài năng, mà còn là sự không trùng hợp của các yếu tố mang tính tư tưởng, kinh tế, chức năng. Không có những xúc cảm cao độ của thế giới mới, không vì sự nghèo đói và sự đơn điệu của vật liệu xây dựng để phải tạo ra các hình dáng đơn giản, và cuối cùng cũng không phải do những đơn đặt hàng làm các câu lạc bộ, các nhà ăn hay nhà ở xã hội của xã hội.

Tuy nhiên, mối liên quan mật thiết đến tính thẩm mỹ đã thể hiện rất rõ. Trước hết là việc tuân theo những nguyên tắc cơ bản của chủ nghĩa cấu trúc: hình thức phù hợp với cấu trúc, cấu trúc phù hợp công năng. Nghĩa là hình dáng ngôi nhà không chỉ là cái mặt tiền cõng theo một hình khối nào đó, mà nó phải thể hiện được sự bố trí và cấu tạo bên trong. Từ đấy mới có thể tạo ra sự đơn giản, những đường nét dứt khoát, không trang trí rườm rà, những “góc” những “cạnh” mang tính tổng thể hơn là nơi thể hiện các chi tiết màu mè, thừa thãi. Sự phối hợp giữa các hình khối có chiều cao bằng nhau, những góc cạnh, khối phẳng, khối cong, được nhấn nhá bằng những nét mạnh mẽ theo phương nằm ngang, cùng với các giải pháp tạo dáng: cửa sổ dẹp và tròn, đặt cách xa nhau được nhấn nhá bởi các ban-công hoặc khối tháp ở các góc.

Trước khi tìm ra lý do tại sao tất cả đột ngột quay sang Chủ nghĩa Cấu trúc (constructivism), cần phải lý giải tại sao điều này đã không diễn ra sớm hơn.

Trước hết đó là sự dị ứng với tất cả những gì liên quan đến hệ tư tưởng cộng sản. Kế đến là vì tư tưởng chủ đạo của chủ nghĩa cấu trúc thì đơn giản, chuẩn mực, có tính điển hình, và nói chung thì tại vì cái hậu quả “kiến trúc như một ngành công nghiệp” đã làm người ta tin (nghi ngờ) những điều phi lý từng diễn ra dưới thời Khrushchev. Những ngôi nhà 5 tầng lắp ghép bằng panel như một cú đấm vào huyền thoại lãng mạn của Chủ nghĩa Cấu trúc. Mặc dù vào những năm 70 đã xuất hiện những mẫu nhà theo kiểu Tân Cấu trúc (nhà “chân rết” trên đường Berovoy của KTS Andrey Meerson (ngôi nhà được xây dựng năm 1978 nhân dịp Thế Vận Hội 1980)

http://img-fotki.yandex.ru/get/4508/...f280b_orig.jpg

http://img-fotki.yandex.ru/get/5602/...1e060_orig.jpg

hoặc Trường múa trên đại lộ Frunzhen xây dựng năm 1968
http://www.ljplus.ru/img4/s/y/synthart/IMG_0019.jpg

http://www.ljplus.ru/img4/s/y/synthart/IMG_0034.jpg

những thử nghiệm như vậy đều đi vào ngõ cụt hoặc đều dẫn tới các “chuẩn mực kiểu Lê-nin”.

Cuối cùng vào năm 1988, Andrey Bokov khi tham gia tôn tạo lại bảo tàng Mayakovsky, nơi mà nghệ thuật tiên phong từ những năm 20 vẫn tồn tại đến ngày nay, khi đó ông nhận thức được rằng lịch sử chủ nghĩa cấu trúc giống như một vở kịch đắt giá của nghệ thuật, đã tham dự vào hệ thống và bị hệ thống nghiền nát. Điều thú vị đấy lại là một mẫu theo phong cách phi cấu trúc đầu tiên của kiến trúc Moskva (không gian gợi đến Bảo tàng Guggenheim ở New York): nghĩa là đã có 1 phong cách kiến trúc phương Tây tồn tại được ở nước Nga, ẩn chứa âm thầm những câu chuyện của riêng mình.
http://www.museum.ru/Majakovskiy/img/ph1_100.jpg

http://vladmayak.narod.ru/images/6.jpg

http://pic2.fotki.lv/photos2/6/W0002...ardoulacha.jpg

Nguồn: Tạp chí Itogi số 44/2000
Tạm dịch: Kóc Khơ me
(còn tiếp)

Kóc Khơ Me 16-10-2011 20:03

Chủ nghĩa Cấu Tạo đang sẵn sàng


(tiếp theo)

Tương tự như vậy là những trải nghiệm của Yuri Avvakumov, đưa các khối tháp của Tatlin vào công trình “công nhân và nông trang viên”,sau khi đã nhúng chìm cả cái tháp nhảy trong hồ bơi xuống cái bể khổng lồ.
http://i1178.photobucket.com/albums/...17-40-36PM.jpg http://i1178.photobucket.com/albums/...17-41-46PM.jpg

Dự án “Kiến trúc bằng giấy” của Avvakumov nhằm giới thiệu lại các trào lưu kiến trúc ở Moskva những năm 80 là minh chứng tuyệt về sự lan truyền thực chất của phong cách – nguyên gốc, mỉa mai và buồn bã. Có vẻ như mọi chuyện đã đến hồi kết thúc.
http://i1178.photobucket.com/albums/...17-50-52PM.jpg

http://i1178.photobucket.com/albums/...17-50-20PM.jpg

http://i1178.photobucket.com/albums/...17-51-26PM.jpg

http://i1178.photobucket.com/albums/...17-51-49PM.jpg

Tuy nhiên sự bùng nổ về xây dựng những năm 90 ở Moskva như một bước đệm xấu xí để rồi chẳng bao lâu sau phát sinh yêu cầu xử lý. Vladimir Paperny đã tái bản không kịp cuốn sách nổi tiếng của mình về nước Nga, để trấn an tất cả rằng sẽ không lập lại lần nữa nền văn hóa “số hai” (nói đến văn hóa kiểu Stalin, độc tài, chuyên chế), rằng phía chân trời đã xuất hiện một nền văn hóa “số một”.
http://www.archi.ru/files/img/news/large/5659.jpg

http://www.archi.ru/files/img/news/large/5813.jpg

Nguồn: Tạp chí Itogi số 44/2000
Tạm dịch: Kóc Khơ Me
(còn tiếp)

htienkenzo 17-10-2011 14:05

Trích:

Kóc Khơ Me viết (Bài viết 96846)
Chủ nghĩa Cấu Tạo đang sẵn sàng
Конструктивизм в тапочках

Triều đại kiến trúc kiểu Luzhkov đã chấm dứt. Ở Moskva có kiểu kiến trúc mới đang thịnh hành.
Phong cách kiến trúc ở Moskva đã thay đổi. Cách nay vài năm tạp chí “Itogi” đã có những bài viết về những xu hướng mới trong kiến trúc Moskva, về chủ nghĩa lịch sử, về “phong cách Nga”, về các tòa tháp, về những kiểu kiến trúc mà Yuri Luzhkov yêu thích cũng như chỉ để làm ông ta vui lòng mà các nhà kiến trúc đã gán ghép vào hầu hết các công trình.

Ngày nay người ta thích những kiểu khác, những cái đơn giản, những hình khối hình học cân xứng, những đường thẳng, những bức tường trơn trắng, loại bớt các trang trí màu mè. Kiểu kiến trúc ấy làm nhớ lại Moskva những năm 20, về kiến trúc Nga tiên tiến, đặc biệt là phong cách của Chủ nghĩa cấu trúc. Vì vậy phong cách kiến trúc mới ở Moskva còn được gọi là phong cách “Tân Cấu Trúc” (неоконструктивизм)

...
Nguồn: Tạp chí Itogi số 44/2000
Tạm dịch: Kóc Khơ me
(còn tiếp)

Cảm ơn những bài dịch và sự biên soạn rất công phu, kỹ lưỡng và đầy bổ ích của bác Kóc! :emoticon-0150-hands

Kóc Khơ Me 19-10-2011 08:09

Chủ nghĩa Cấu Tạo đang sẵn sàng
(tiếp theo)

2./ Chủ nghĩa Cấu tạo như một biểu tượng.

Tại sao lại là Chủ nghĩa Cấu tạo? Trước tiên thì các Kiến trúc sư hàng đầu hiện nay trưởng thành từ phong cách này; cái phong cách bao quanh cả thời tuổi trẻ của họ, cái phong cách đã tạo ra các mối quan hệ nghề nghiệp giữa họ (những người nghiệp dư thích kiểu phong cách hiện đại hoặc cổ điển hơn là những gì ảnh hưởng bởi Stalin, bởi chủ nghĩa duy mỹ một cách thái quá, trong khi dưới thời Xô-Viết một cách mặc nhiên không ai lại thích kiểu phong cách hiện đại này).

Kế đến là lòng tự hào dân tộc: Chủ nghĩa Cấu tạo là phong cách duy nhất giữ nguyên bản chất, không bị lai tạp bởi những gì đã diễn ra trong kiến trúc Nga thế kỷ XX, và còn vì trong giai đoạn đầy biến động và hỗn độn gần đây, khi mà bạn không biết lấy nguồn cảm hứng sáng tạo từ đâu, từ cái gì, vào khi nào, thì Chủ nghĩa Cấu tạo lại ùa đến một cách tự nhiên, tươi tắn và đúng lúc.

Ngoài ra, nền kiến trúc Nga đang cố hết sức để đuổi kịp phương Tây. Về mặt kỹ thuật là bất khả nên cần phải ăn láu lỉnh một chút: lấy lại những gì đã từng là của mình (những ý tưởng về tạo hình của Chủ nghĩa Cấu tạo vẫn đang được phương Tây ưa chuộng: tên tuổi của Leonidov được các KTS hàng đầu thế giới tôn sùng ngang với Rem Koolhaas hoặc Zaha Hadid, còn trong một triển lãm mùa xuân mang tên “Kiến Trúc và Thiết kế” tại Trung tâm Nghệ thuật Quốc gia (ЦДХ) đã cho thấy bao nhiêu là công trình theo Chủ nghĩa Cấu tạo Nga được xây dựng mới ở Berlin, một công trường xây dựng lớn ở phương Tây).

Vài kiến trúc ở Berlin
http://upload.wikimedia.org/wikipedi..._26.3.2009.jpg

http://farm4.static.flickr.com/3244/...636ea5a6_b.jpg

Kế đến, nếu như ở phương Tây các ý tưởng của các thiên tài người Nga được nhìn nhận và ứng dụng một cách rộng rãi dưới nhiều hình thức, thì tại nước Nga các ý tưởng ấy hoặc chỉ còn lại trên những bản thiết kế hoặc đang bị xuống cấp hoang tàn ngay trước mắt. Vì vậy cũng dễ hiểu cho cái mong muốn cao cả của các nhà kiến trúc Nga hiện nay là làm cho bằng được cái việc của các tiền bối trước đây còn dang dở bằng những vật liệu mới với chất lượng mới.

Cũng cần thấy rằng, về mặt tư tưởng thì Chủ nghĩa Cấu tạo hiện nay đang gặp thuận lợi đặc biệt: một mặt đây là phong cách mang tính cách mạng, khẳng định các giá trị chân chính của Chủ nghĩa Cộng sản, mặt khác từ phía chế độ cũ vừa bị tan rã chỉ có khoảng 1 phần 3 là không ủng hộ phong cách này. Vì vậy việc ứng dụng phong cách này không làm cho các nhà lãnh đạo văn hóa hiện nay phải đứng trước sự lựa chọn mang tính chính trị: theo phe tả hay phe hữu.

Cuối cùng thì thời kỳ hậu khủng hoảng (thời kỳ sinh ra hiện tượng này) đặt ra yêu cầu phải thay thế cái sự lòe loẹt vô độ của phong cách “Luzhkov” bằng một phong cách khác hợp thời hơn: đơn giản hơn, mạnh mẽ sắc sảo và thân thiện hơn.

Một vài tác phẩm của tiền bối Leonidov được dựng lại bằng kỹ thuật hiện đại để tưởng nhớ đến Ông
http://www.render.ru/tmp/gallery/11/...49839907_1.jpg

http://www.render.ru/tmp/gallery/11/...49839907_2.jpg

http://www.eligovision.ru/pics/Leonidov06.jpg

Tác phẩm của Rem Koolhaas
http://infuture.ru/filemanager/cctv_...a_220307_2.jpg

http://arx.novosibdom.ru/story/NOV_A...oolhaas_01.jpg

http://img253.imageshack.us/img253/18/inf01.jpg

Tác phẩm của Zaha Hadid. Olympic Aquatics Centre. London
http://i1178.photobucket.com/albums/...atics_comp.jpg

http://i1178.photobucket.com/albums/...ics_centre.jpg

Civil Court for Madrid
http://www.inhabitat.com/wp-content/...ahamadrid3.jpg

http://ais4architecture.co.uk/wp-con...ds/4017_2a.jpg

Nguồn: Tạp chí Itogi số 44/2000
Tạm dịch: Kóc Khơ Me
(còn tiếp)

LyMisaD88 19-10-2011 10:06

Tòa nhà này mà xây được nó chắc là khó lắm đây các bác nhỉ?

http://i1127.photobucket.com/albums/...W7YCAY7MQS.jpg

Kóc Khơ Me 19-10-2011 10:38

Trích:

LyMisaD88 viết (Bài viết 97087)
Tòa nhà này mà xây được nó chắc là khó lắm đây các bác nhỉ?

http://i1127.photobucket.com/albums/...W7YCAY7MQS.jpg

Thường thì nếu xây bằng phương pháp thông thường từ móng trở lên nóc mà khó khăn qua thì người ta làm ngược lại, tức là dựng từ nóc trở xuống giống như ngày xưa người ta làm vườn treo Babilon ấy! :emoticon-0106-cryin Hoặc là dựng ở chỗ khác theo phương khác cho dễ rồi di chuyển đến và lật ngược lại... !

Trong thực tế thì ý chí và ý muốn của con người sẽ làm được tất cả: Vạn lý trường thành, Kim tự tháp Ai cập....

htienkenzo 19-10-2011 14:16

Trích:

Kóc Khơ Me viết (Bài viết 97089)
Thường thì nếu xây bằng phương pháp thông thường từ móng trở lên nóc mà khó khăn qua thì người ta làm ngược lại, tức là dựng từ nóc trở xuống giống như ngày xưa người ta làm vườn treo Babilon ấy! :emoticon-0106-cryin Hoặc là dựng ở chỗ khác theo phương khác cho dễ rồi di chuyển đến và lật ngược lại... !

Trong thực tế thì ý chí và ý muốn của con người sẽ làm được tất cả: Vạn lý trường thành, Kim tự tháp Ai cập....

Vâng!
Ở các nước tiên tiến, các chương trình máy tính hỗ trợ vào kiến trúc và xây dựng rất nhiều và rất hiệu quả. Các công trình dạng này, người ta có được rất nhiều MẶT CẮT (vài chục mặt cắt) được hỗ trợ bởi máy tính. Thế nên, họ xác định được vị trí của điểm rất dễ dàng và chính xác. Trên cơ sở đó, em nghĩ rằng người ta sẽ có 3 trong nhiều cách trong kỹ thuật xây dựng tiên tiến trên thế giới hiện nay:
- Cách 1: Người ta xác định được hệ khung cơ bản trong không gian, họ sẽ thi công đổ beton toàn khối. Những tấm tường hay sàn đã được tạo thành những Panel và liên kết vào hệ khung đã ổn định. Dạng này cũng giống như các khu nhà lắp ghép ở Liên Xô hay các khu tập thể lắp ghép ở miền Bắc Việt Nam.

- Cách 2: Như ý bác Kóc, người ta hoàn chỉnh phần thân công trình ở bên ngoài, sau đó họ liên kết vào hệ móng mà họ đã thi công song song cùng với phần thân.

- Cách 3: Toàn bộ công trình được thi công lắp ráp bằng thép hình cơ bản hay những cấu kiện thép được chế tạo theo những Module nào đó. Các liên kết thép là những liên kết Boulon hay liên kết hàn (tùy theo vị trí mà người ta sẽ quyết định hàn hay là boulon). Khi ấy ta đã có công trình với hình dạng gần hoàn chỉnh giống như trên ảnh. Và cuối cùng, họ phủ một lớp beton bên ngoài làm "áo" hoặc là họ sẽ dùng những tấm ốp bề mặt vào những vị trí, không gian cần thiết để thể hiện sức biểu cảm của vật liệu ở bề mặt... Ở Sài Gòn, công trình DIAMOND PLAZA tiêu biểu cho phương pháp thi công này đấy, bác Lý ạ!

...

htienkenzo 19-10-2011 16:33

Mời các bác xem qua 1 số đoạn YouTube về các công trình kiến trúc thuộc Trường phái Chủ nghĩa Cấu tạo Nga:

Tatlin Tower - St Petersburg




Rusakov Workers Club (Melnikov)



Giờ Hà Nội. Hiện tại là 01:10.

Powered by: vBulletin v3.8.5 & Copyright © 2026, Jelsoft Enterprises Ltd.
VBulletin ® is registered by www.nuocnga.net license.